FLO9_Rendering 4
240226-004s
240226-008s
240226-009s
240226-015s
240226-010s
240226-011s
240226-003s
240226-001s
240226-002s
FL09_Rendering 3
FL09_Rendering 1

Ab April: Rooftop 2-Zimmer mit Balkon im 11. Stock, Fußbodenheizung | FLO7

Floridsdorfer Hauptstraße 7-9

Beschreibung

Besichtigungstermin der gleichen Wohnung im 8. Stock findet am Montag (23.02.2026) um 18:00 - Anmeldung per Email notwendig!
___________________________________
Hierbei handelt es sich um Fotos der Musterwohnung im Haus!
___________________________________
Dieses innovativ gestaltete Wohnprojekt im 21. Wiener Gemeindebezirk definiert sich durch seine hochwertige Ausstattung, ideale Lage und exzellente Anbindung als Mittelpunkt für zeitgemäßes Wohnen und Arbeiten.
Auf 11 Etagen bietet es 168 moderne Mietwohnungen mit 1 bis 4 Zimmern, ausgestattet mit Fußbodenheizung und großzügigen Freiflächen.

Ihr neues Zuhause bietet einen beeindruckenden Panoramablick von der Alten Donau bis zum Kahlenberg. Die Gemeinschaftsterrasse lädt zum Verweilen ein, und die erstklassige Infrastruktur sowie die Nähe zum Floridsdorfer Wasserpark, der Alten Donau und der Donauinsel runden das Freizeitangebot perfekt ab.
Erleben Sie urbanes Wohnen inmitten einer grünen Oase.

Für zusätzlichen Komfort besteht die Möglichkeit, einen Stellplatz in der hauseigenen Tiefgarage für EUR 90,00 brutto pro Monat anzumieten.

Ausstattung

- Edle Einbauküchen inklusive Geräte
- Hochwertige Parkettböden (Eiche)
- Fußbodenheizung mit Fernwärme
- Elektrische Außenbeschattung
- Großzügige Freiflächen (Balkon, Loggia oder Terrasse)
- Gemeinschaftsterrasse mit Fernblick
- Kinderwagen- und Fahrradabstellraum
- Feinsteinzeugfliesen in den Nassräumen

Lage und Verkehrsanbindung

FLO07 überzeugt durch eine ausgezeichnete Infrastruktur und eine beeindruckende Aussicht.

Die Lage von FLO07 bietet nicht nur eine optimale Verkehrsanbindung, sondern auch zahlreiche Möglichkeiten für Naherholung, Sport und Kultur - Floridsdorfer Wasserpark, Alte Donau, Donauinsel.
Durch die unmittelbare Nähe zum Floridsdorfer Bahnhof ergeben sich zusätzliche Vorteile wie bequeme Nahversorgung, abwechslungsreiche Gastronomie und eine hervorragende Verkehrsanbindung. Die Straßenbahnlinie 31 bietet zudem eine Direktverbindung in die Wiener Innenstadt (Schottenring).

U-Bahn-Linie U6
Schnellbahn-Linie S1, S2, S3, S4, S7
Bus-Linie 20A, 33A, 34A
Straßenbahn-Linie 25, 26, 30, 31

Konditionen

Provisionsfreie Neubauwohnungen.

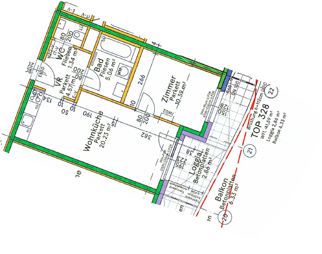
Grundriss

Plan 0

Fakten

Objektnummer:
2024-1210-328
Objekttyp:
Wohnung
Balkon:
1
Loggia:
1
Balkonfläche:
9,61 m²
Wohnfläche:
41,76 m²
Zimmer:
2
Schlafzimmer:
1
Stockwerk:
11
Baujahr:
2024
Zustand:
Erstbezug
Verfügbar ab:
01.04.2026

Preisdetails

Nettomiete:
728,03 €
Betriebskosten netto:
89,24 €
Gesamtmiete:
898,99 €
Bruttomiete:
800,83 €
Betriebskosten brutto:
98,16 €
Kaution:
2.697,00 €
Provision:
Provisionsfrei

Energieeffizienz

HWB:
20.07 kWh/(m²*a)
Klasse HWB:
A
fGEE:
0.87
Klasse fGEE:
B
Ausstellung:
ab dem 1.5.2014
Gültig bis:
06.08.2033

Ansprechpartner

Anfrage
Max. 500 Zeichen
Ich habe die Datenschutzvereinbarung gelesen und verstanden, und ich stimme der Verarbeitung meiner persönlichen Daten wie darin beschrieben zu. *