Besprechungsraum
Besprechungsraum (Möblierungsvorschlag)
Empfang
Büro
Büro 2
Büro 3
Teeküche
Sanitär
Dusche
Lager - Büro

Attraktive Bürofläche mit perfekter Infrastruktur zu mieten!

Ignaz Köck -Straße 9

Beschreibung

In unmittelbarer Nähe zum Einkaufszentrum SCN gelegen, befindet sich ein belebter Gewerbehof mit hochwertig
sanierten Büroflächen. Hier gelangt eine modern ausgestattete und höchst funktionale Bürofläche in die Vermarktung.

Das barrierefreie Objekt zeichnet sich durch flexible und effiziente Raumgestaltung sowie unterschiedliche Nutzungsmöglichkeiten aus.
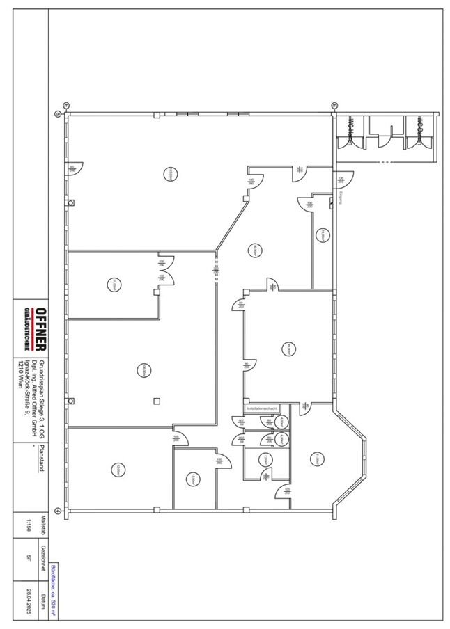
Ein freundlicher Empfangsbereich mündet in die Gangfläche, welche alle Zimmer zentral verbindet. Neben einem
Besprechungsraum stehen Arbeitsräume in verschiedenen Größen sowie eine Teeküche zur Verfügung. Im Allgemeinbereich befinden sich die soeben hochwertigst sanierten Sanitärräumlichkeiten. Hier besteht zudem die Möglichkeit, sich zu duschen.
Die hauseigene Tiefgarage sowie die danebenliegende Parkgarage des SCN bietet potentiellen Mietinteressenten ausreichend und bequem erreichbare Parkplätze.

Ausstattung

- Kühlung
- Aufzug
- barrierefreier Zugang
- modernste Sanitäranlagen inkl. Dusche
- Teppichboden bzw. Linoleum
- Tiefgarage
- Verkabelung im Parapet (CAT 7)
- Teeküche

Lage und Verkehrsanbindung

Schnellbahn: S3 Brünnerstraße
Straßenbahn: 30, 31
A22 in 2 Autominuten erreichbar

Durch das direkt angrenzende Shopping Center Nord(SCN) mit seinem vielfältigen Angebot an Restaurants und Einkaufsmöglichkeiten ist perfekte Infrastruktur vorhanden. Die Anbindung an das öffentliche Verkehrsnetz ist mit der
in unmittelbarer Entfernung liegenden S3 Schnellbahnstation Brünner Straße gewährleistet. Mit dem PKW gelangen Sie in nur 2 Minuten auf die A22.

Konditionen

Miete Büro: EUR 13,00/m²
BK Büro: EUR 4,00/m²

Alle Preisangaben verstehen sich zzgl. 20 % USt.

Grundriss

Plan 0

Fakten

Objektnummer:
2026-05448
Objekttyp:
Büro
Nutzfläche:
520 m²
Baujahr:
1991
Verfügbar ab:
ab sofort

Preisdetails

Miete/m² netto:
13,00 €
Betriebskosten pro m²:
4,00 €

Energieeffizienz

HWB:
76.50 kWh/(m²*a)
fGEE:
0.74

Ansprechpartner

Anfrage
Max. 500 Zeichen
Ich habe die Datenschutzvereinbarung gelesen und verstanden, und ich stimme der Verarbeitung meiner persönlichen Daten wie darin beschrieben zu. *