1010 Wien, Trattnerhof 1 außen
1010 Wien, Trattnerhof 1 Eingang
1010 Wien, Trattnerhof 1 Stiegenhaus

Büro im Trattnerhof

Beschreibung

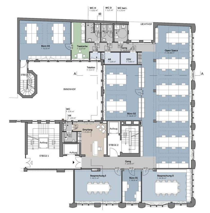
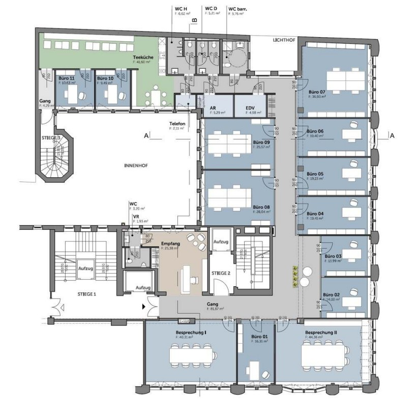
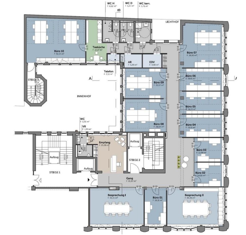
In erstklassiger Innenstadtlage befindet sich im 4. OG des eindrucksvollen Trattnerhofs eine repräsentative und einzigartige Bürofläche. Die Einheit wird derzeit umfassend saniert und bietet zukünftigen Mietern die Möglichkeit bis zum 2. Quartal 2026 den Innenausbau sowie individuelle Raumaufteilung mitzugestalten. Zur Orientierung stehen drei durchdachte Ausbauvarianten zur Verfügung, die unterschiedliche Nutzungsmöglichkeiten abbilden. Ob großzügige Open-Space-Konzepte oder klassische Einzelbüros mit Besprechungsräumen – die Fläche lässt sich optimal an die verschiedensten Anforderungen anpassen. Große
Fenster sowie Glaswände mit Doppelverglasung sorgen für ein helles und offenes Arbeitsumfeld. Je nach Gestaltungskonzept kommen stilvolle Parkettböden oder moderne Teppichböden (Teppichfließen) zum Einsatz, die sowohl optisch als auch funktional überzeugen. Für optimale Lichtverhältnisse (LED) sorgen Deckenspots und Hängeleuchten.

Ausstattung

Die Einheit wird derzeit umfassend saniert und bietet zukünftigen Mietern die Möglichkeit bis zum 2. Quartal 2026 den Innenausbau sowie individuelle Raumaufteilung mitzugestalten.

- Glaswände mit Doppelverglasung
- Neu errichtete Sanitäreinheiten
- Duschen + behindertengerechtes WC
- Serverraum extra gekühlt
- Innenliegender Blendschutz
- Teeküchen
- Akustikdecke

Lage und Verkehrsanbindung

Zahlreiche Restaurants, Cafés und Einkaufsmöglichkeiten sowie eine hervorragende Anbindung an den öffentlichen Verkehr befinden sich in unmittelbarer Nähe.

öffentliche Anbindung:
U-Bahn: U1, U3 Stephansplatz
Bus: 1A, 2A, 3A

Konditionen

Miete Büro: EUR 25,00/m²
BK Büro: EUR 3,58/m² zzgl. Heizung und Kühlung

Alle Preise verstehen sich pro Monat zzgl. Umsatzsteuer.

Grundriss

Plan 0

Fakten

Objektnummer:
2026-05460
Objekttyp:
Büro
Nutzfläche:
504 m²
Gesamtfläche:
10.000 m²
Baujahr:
1900
Verfügbar ab:
Q1 2027

Preisdetails

Miete/m² netto:
25,00 €
Betriebskosten pro m²:
3,58 €
Provision:
3 BMM

Energieeffizienz

HWB:
134.06 kWh/(m²*a)

Ansprechpartner

Anfrage
Max. 500 Zeichen