1150 Wien, Linke Wienzeile 216 außen

Büro/Praxis Nähe U4/U6 Längenfeldgasse

Linke Wienzeile 216

Beschreibung

Repräsentatives Büro mit Eigengarten & Terrasse zu mieten in 1150 Wien.

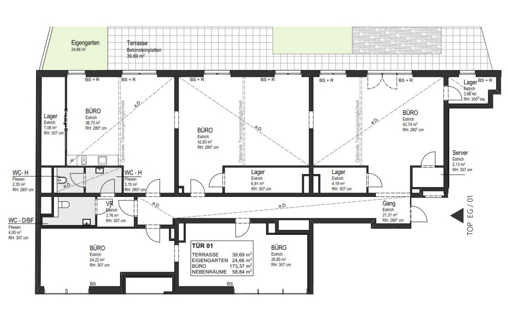
In prominenter Ecklage an der Linken Wienzeile entsteht ein hochwertiges Wohn- und Geschäftsgebäude mit zahlreichen Wohneinheiten sowie Serviced Apartments. Im Erdgeschoss dieses modernen Neubaus befindet sich ein exklusives Büro bzw. eine Praxis mit einer großzügigen Fläche von ca. 232 m². Die Bürofläche eignet sich ideal für Unternehmen, die Wert auf eine hohe Aufenthaltsqualität und ausgezeichnete Infrastruktur legen. Der private Garten sowie die Terrasse schaffen eine besondere Arbeitsatmosphäre und bieten zusätzlichen Raum für Pausen, Meetings im Freien oder Kundengespräche in angenehmem Ambiente.

verfügbare Fläche:
EG: ca. 232 m²

Ausstattung

- PV-Anlage
- Video-Gegensprechanlage
- Fußbodenheizung
- Kühlung über Fancoil-Innengeräte
- Raumhöhe 2,80 m
- Straßenseitig 3fach Verglasung
- Sonnenschutz: hofseitig mit Rollläden in weiß
- (Einbruchsschutz) und über Jalousietaster zu betätigen
- Innenliegender Blendschutz bei allen Fenstern
- Lichtauslässe mit Fassung und Leuchtmittel (LED) bestückt

Lage und Verkehrsanbindung

Direkt an der Linken Wienzeile, gegenüber der U-Bahn-Station Längenfeldgasse.

U-Bahn: U4, U6
Bus: 12A, 57A

Konditionen

Miete Büro: EUR 13,00/m²
BK Büro: EUR 3,00/m²
Miete Garage: EUR 120,00/Stk.

Alle Preise verstehen sich pro Monat zzgl. Umsatzsteuer.

Grundriss

Plan 0

Fakten

Objektnummer:
2026-05455
Objekttyp:
Büro
Balkonfläche:
65 m²
Nutzfläche:
232,21 m²
Gesamtfläche:
5.000 m²
Baujahr:
2026
Verfügbar ab:
sofort verfügbar

Preisdetails

Miete/m² netto:
13,00 €
Betriebskosten pro m²:
3,00 €
Provision:
3 BMM

Energieeffizienz

HWB:
25.90 kWh/(m²*a)
fGEE:
0.74

Ansprechpartner

Anfrage
Max. 500 Zeichen
Ich habe die Datenschutzvereinbarung gelesen und verstanden, und ich stimme der Verarbeitung meiner persönlichen Daten wie darin beschrieben zu. *