1210 Wien, Shuttleworthstraße 10 Haus 68 außen

Büroflächen Floridsdorf

Shuttleworthstraße 10

Beschreibung

Das Gebäude befindet sich in der Shuttleworthstraße zwischen Autobahnabfahrt Floridsdorf und S-Bahn-Station Siemensstraße. Die verfügbaren Büroflächen befinden sich in den Gebäuden 67 und 68 und weisen einen guten Erhaltungszustand auf und könnten rasch bezogen werden.

verfügbare Büroflächen:
Haus 67: 1.OG, 2.OG, 3.OG gesamt = 2.403 m²
Haus 68: 3.OG gesamt = 2.454 m²
Haus 68: 2.OG = 1.367 m²
gesamt: 6.224 m²

Ausstattung

Die Flächen wurden von einem Schulungsinstitut genutzt und befinden sich in einem guten Zustand:

- Fernwärme
- Kabelkanäle
- öffenbare Fenster
- Lift
- Teeküchen
- getrennte Sanitärbereiche
- (Kühlung optional)

Lage und Verkehrsanbindung

Zwischen Autobahnabfahrt Floridsdorf, SCN und Siemensstraße.

öffentliche Verkehrsanbindung:
S-Bahn: Siemenstraße
Straßenbahn: 30, 31
Bus: 36B

Konditionen

Miete Büro: EUR 10,50/m²
BK Büro: EUR 2,50/m² zzgl. Heizung und Heizung

Alle Preise verstehen sich pro Monat zzgl. Umsatzsteuer.

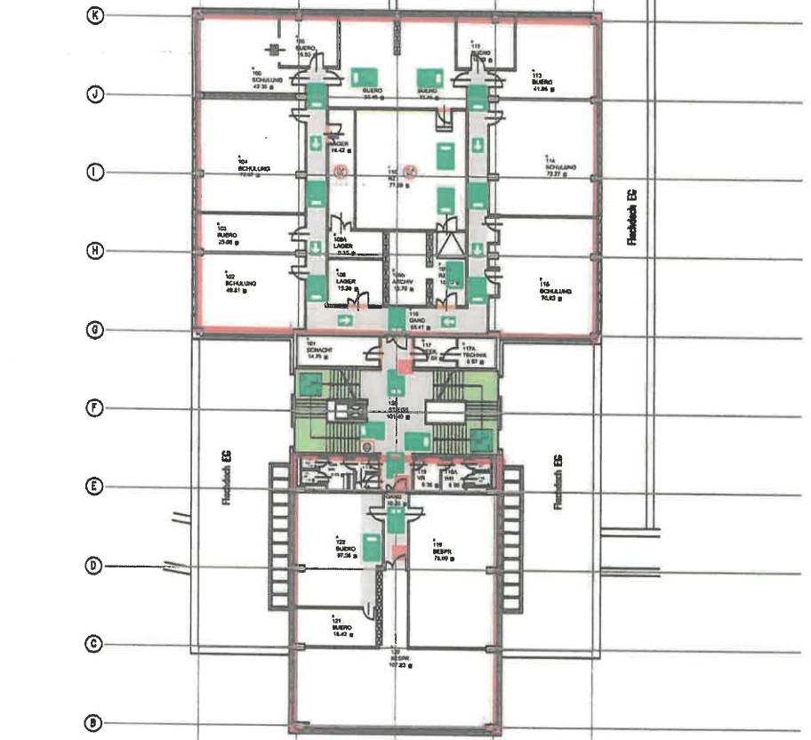
Grundriss

Plan 0

Fakten

Objektnummer:
2024-01888
Objekttyp:
Büro
Teilbare Fläche ab:
1.367 m²
Nutzfläche:
6.224 m²
Gesamtfläche:
15.000 m²
Baujahr:
1990
Verfügbar ab:
sofort verfügbar

Preisdetails

Miete/m² netto:
10,50 €
Betriebskosten pro m²:
2,50 €
Provision:
3 BMM

Energieeffizienz

HWB:
45.00 kWh/(m²*a)

Ansprechpartner

Anfrage
Max. 500 Zeichen
Ich habe die Datenschutzvereinbarung gelesen und verstanden, und ich stimme der Verarbeitung meiner persönlichen Daten wie darin beschrieben zu. *