(c) OPTIN Walcherstraße 2nd Central
1020 Wien, Walcherstraße 11 2nd Central innen
1020 Wien, Walcherstraße 11 2nd Central innen 2

Bürogebäude 2nd Central

Walcherstraße 11

Beschreibung

Die zur Vermietung stehenden Flächen befinden sich im 4. Obergeschoss des Gebäudes. Die Büroflächen sind hochwertig mit Glastrennwänden ausgestattet, Ausstattungselemente können vom Vormieter übernommen werden. Das Gebäude wurde im Jahr 2013 fertiggestellt und wurde durch die ÖGNI zertifiziert.

verfügbare Büroflächen:
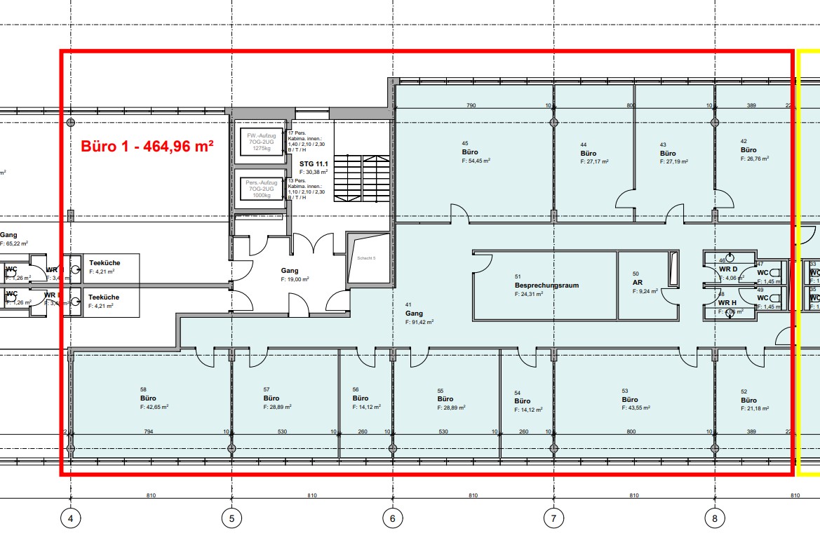
4.OG - Top 1 - 465 m²
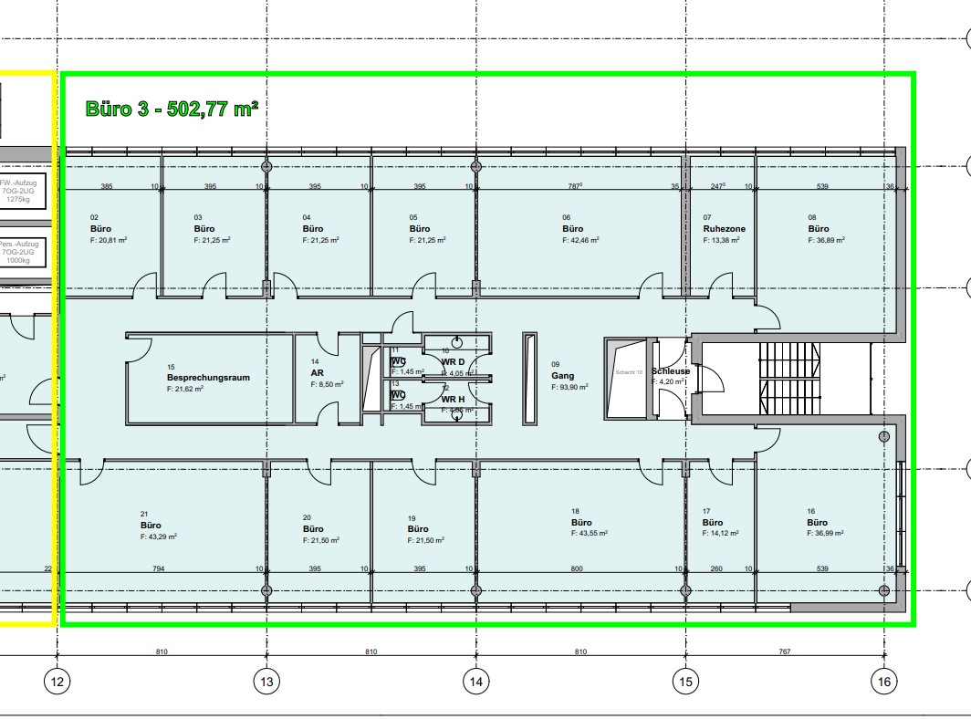
4.OG - Top 3 - 503 m²

In den Untergeschossen befindet sich eine großzügige Garage und Lagerflächen (16m² - 117m²).

Ausstattung

- Doppelböden
- Kühlbalken
- außenliegender Sonnenschutz
- Stehleuchten
- öffenbare Fenster
- Teeküchen
- IT Verkabelung (vorhanden)
- Lichte Raumhöhe: 2,80 m

Lage und Verkehrsanbindung

Das Gebäude befindet sich in zentraler Lage an der Walcherstraße angrenzend an das aufstrebende Nordbahnviertel. in fußläufiger Entfernung zum Verkehrsknotenpunkt Praterstern.

öffentliche Verkehrsanbindung:
U-Bahn: U1, U2
Zug: diverse S Bahnen

Konditionen

Miete Büro: EUR 15,50/m²
BK Büro: EUR 3,30/m² (ink. HK)
Strom Büro: EUR 1,14/m²
Miete Stellplätze: EUR 150,00/Stk. inkl.BK

Kaution: 3-6 Bruttomonatsmieten

Alle Preisangaben verstehen sich pro Monat sowie zzgl. 20 % USt.

Grundriss

Plan 0

Fakten

Objektnummer:
2023-01792
Objekttyp:
Büro
Teilbare Fläche ab:
465 m²
Nutzfläche:
968 m²
Gesamtfläche:
14.000 m²
Baujahr:
2013
Verfügbar ab:
ab sofort

Preisdetails

Miete/m² netto:
15,50 €
Garage Kosten brutto:
150,00 €
Betriebskosten pro m²:
3,30 €
Provision:
3 BMM zuzüglich Ust.

Ansprechpartner

Anfrage
Max. 500 Zeichen
Ich habe die Datenschutzvereinbarung gelesen und verstanden, und ich stimme der Verarbeitung meiner persönlichen Daten wie darin beschrieben zu. *