IMG_6369
1010 Wien, Mahlerstrasse 7 Top 34 DG Terrasse
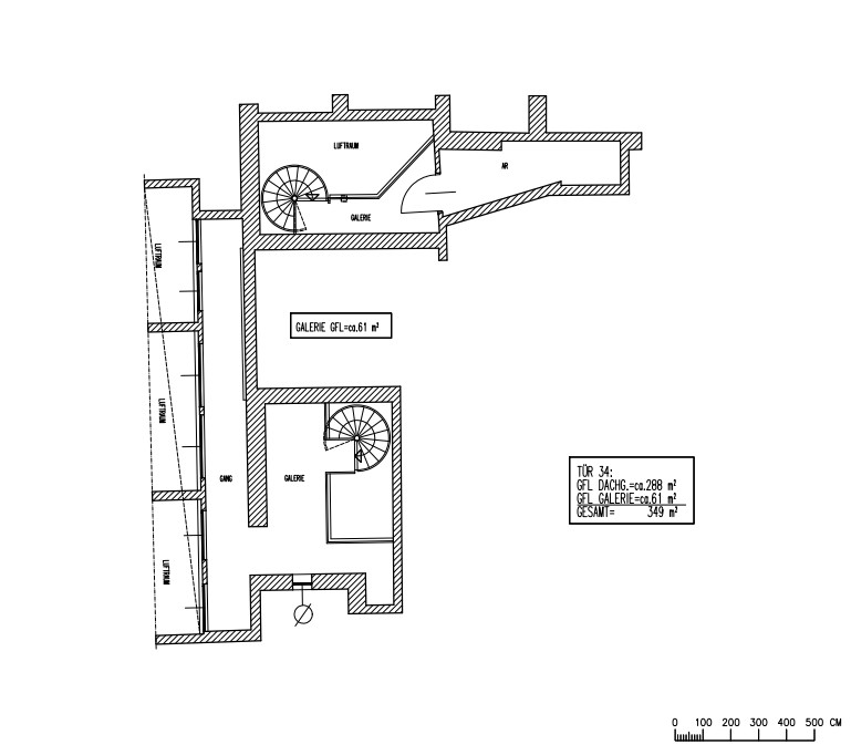
1010 Wien, Mahlerstrasse 7 Top 34 DG
1010 Wien, Mahlerstrasse 7 Top 34 DG Zimmer
IMG_6367
IMG_6360
IMG_6363
IMG_6364
1010 Wien, Mahlerstrasse 7 Top 18 Lift
IMG_6366
IMG_6368

Büros im Zentrum Wiens

Mahlerstrasse 7

Beschreibung

Die Bürofläche befindet sich nähe der Ringstrassen-Galerien in einem sehr attraktiven Altbau-Gebäude, dem Mahlerhof. Das Haus bietet neben einem repräsentativen Eingang und Innenhof einen sehr schönen Zugang im Geschoß. Die Fläche befindet sich in einem sehr hochwertig, adaptierten Zustand und kann sofort bezogen werden.

verfügbare Bürofläche:
1.OG - ca. 194 m²
DG - ca. 349 m²

Ausstattung

- Kühlung
- Beleuchtung
- Parkettböden
- IT-Verkabelung, teilw. über Bodendosen
- eingerichtete Teeküchen
- 2 WC Einheiten - eine davon behindertengerecht ausgestattet
- Lift
- DG: Terrassen

Lage und Verkehrsanbindung

Das Gebäude befindet sich hinter den Ringstraßen-Galerien und somit in unmittelbarer Nähe zur Staatsoper und Kärntner Straße. Sowohl die Garage des Kärntnerringhofs als auch die Operngarage sind fußläufig erreichbar.

Öffentliche Verkehrsanbindung:
- U-Bahn: U1, U2, U4 Karlsplatz
- Straßenbahn: 2,61,71, D
- Bus: 2A

Konditionen

Miete Büro: EUR 15,00-23,00/m²
BK Büro: EUR 2,21/m²
Kühlung (DG): EUR 1,40/m²

Alle Preisangaben verstehen sich pro Monat zzgl. 20% Umsatzsteuer.

Grundriss

Plan 0

Fakten

Objektnummer:
2022-01638
Objekttyp:
Büro
Teilbare Fläche ab:
193 m²
Nutzfläche:
543 m²
Stockwerk:
1
Baujahr:
1861
Verfügbar ab:
ab sofort

Preisdetails

Miete/m² netto ab:
15,00 €
Miete/m² netto bis:
23,00 €
Betriebskosten pro m²:
2,21 €
Provision:
3 BMM zzgl USt.

Energieeffizienz

HWB:
100.60 kWh/(m²*a)
fGEE:
1.79

Ansprechpartner

Anfrage
Max. 500 Zeichen
Ich habe die Datenschutzvereinbarung gelesen und verstanden, und ich stimme der Verarbeitung meiner persönlichen Daten wie darin beschrieben zu. *