1010 Wien, Rathausstraße 20 außen
1010 Wien, Rathausstraße 20 Eingang
1010 Wien, Rathausstraße 20 innen 2
1010 Wien, Rathausstraße 20 innen
1010 Wien, Rathausstraße 20 Einfahrt
1010 Wien, Rathausstraße 20 Terrasse
1010 Wien, Rathausstraße 20 Stiegenhaus

Erstbezug - Büros beim Rathaus

Rathausstraße 20

Beschreibung

Das Gebäude und die Büroflächen in den unteren Geschoßen wurden durch den Vermieter hochwertig saniert - Durch die Entfernung der nicht tragenden Wände wurde eine flexible "Hülle" hergestellt, welche an die Bedürfnisse des zukünftigen Nutzers angepasst werden kann.

Ausstattung

Der Grundriss wird in Absprache mit dem zukünftigen Mieter gestaltet.

- LED-Leuchten
- Kühlung
- Flügeltüren
- Parkettboden
- IT-Verkabelung
- Küche

Lage und Verkehrsanbindung

Direkt hinter dem Rathaus bzw. der Universität Wien und somit fußläufig zur Wiener Ringstraße bzw. zum Verkehrsknotenpunkt Schottentor. Zahlreiche Restaurants und ein Supermarkt befinden sich im direkten Umfeld.

öffentliche Verkehrsanbindung:
U-Bahn: U2 Rathaus oder U2 Schottentor
Straßenbahn: 1, 2, 71, D
Bus: 13A

Konditionen

Miete Büro: EUR 27,00-28,00/m²
BK Büro: EUR 2,81/m²
HK Büro: EUR 0,41/m²

Alle Preise verstehen sich pro Monat zzgl. Umsatzsteuer.

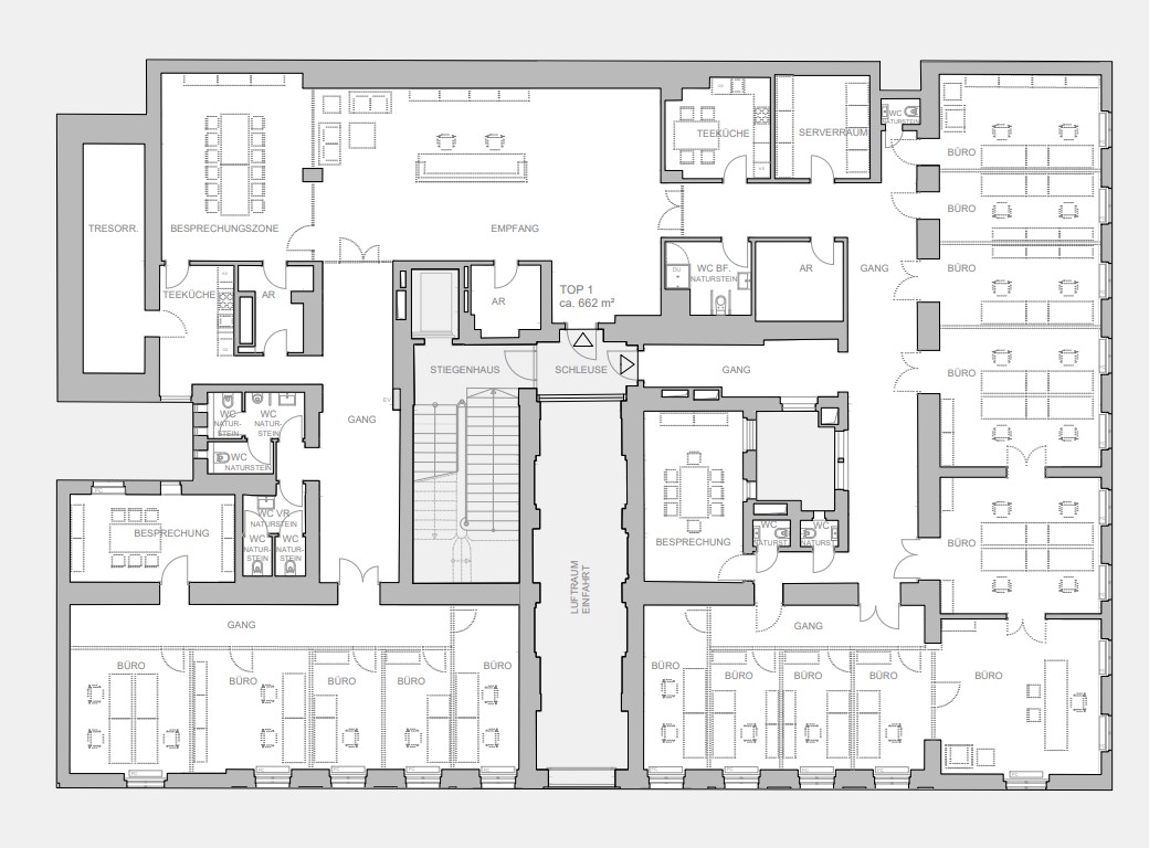
Grundriss

Plan 0

Fakten

Objektnummer:
2026-05423
Objekttyp:
Büro
Teilbare Fläche ab:
239,47 m²
Nutzfläche:
1.293,54 m²
Gesamtfläche:
4.000 m²
Baujahr:
1900
Verfügbar ab:
1.4.2026

Preisdetails

Miete/m² netto ab:
27,00 €
Miete/m² netto bis:
28,00 €
Betriebskosten pro m²:
2,81 €
Provision:
3 BMM

Energieeffizienz

HWB:
69.00 kWh/(m²*a)

Ansprechpartner

Anfrage
Max. 500 Zeichen
Ich habe die Datenschutzvereinbarung gelesen und verstanden, und ich stimme der Verarbeitung meiner persönlichen Daten wie darin beschrieben zu. *