Bad1
c2020_zoomvp_sueba_rosthorngasse_5_c01
c2020_zoomvp_sueba_rosthorngasse_5_c05
c2020_zoomvp_sueba_rosthorngasse_5_c02
Rosthorngasse Visualisierung

EsslingLiving - Gekühlte Wohnung in Ruhelage

Beschreibung

ESSLING LIVING - Traumhafte Wohnungen

Das Projekt Essling Living befindet sich im aufstrebenden 22. Wiener Gemeindebezirk inmitten eines ruhigen Wohngebietes und verbindet urbanes Wohnen im Einklang mit der Natur. Insgesamt wurden 82 innovative Mietwohnungen und 46 Tiefgaragenstellplätze errichtet.
Das Projekt zeichnet sich neben der Lage durch seine vielfältigen Wohnungstypen mit 1,5-4 Zimmer aus. Wohnungsgröße zwischen 35 und 100 m².

Nahezu alle Wohnungen verfügen über einen Balkon, eine Loggia oder eine Terrasse und zeichnen sich durch eine gehobene Ausstattung aus. Sämtliche Wohnungen verfügen zudem über eine Fußbodenkühlung und werden mittels Erdwärme beheizt.
 

Der Immobilienmakler erklärt, dass er – entgegen dem in der Immobilienwirtschaft üblichen Geschäftsgebrauch des Doppelmaklers – einseitig nur für den Vermieter tätig ist.

Ausstattung

Fliesen, Parkett, Erdwärme, Fußbodenheizung, Einbauküche, Personenaufzug, Westbalkon / -terrasse, Badewanne, Kabel / Satelliten-TV, Tiefgarage, Wasch- / Trockenraum, WG geeignet, Fahrradraum, Abstellraum, Kühlung, Außenliegender Sonnenschutz, Gäste-WC, Doppel- / Mehrfachverglasung, Paketempfangsbox

Lage und Verkehrsanbindung

Der Standort des Projektes punktet mit seiner verkehrsgünstigen Lage unweit zu der U-Bahnstation U2 Seestadt, sowie mit seiner ausgezeichneten Infrastruktur.

Einige Supermärkte (Spar, Lidl, Billa), eine Apotheke und eine Tankstelle sind fußläufig erreichbar. Ebenfalls bietet sich in der Umgebung ein großes Angebot an Sportmöglichkeiten. Der nahegelegene Himmelteich und die Kirschenallee laden zudem zu einem idyllischen Spaziergang ein.

Mit der Buslinie 26A gelangt man direkt zum Donauzentrum, wo sich ein breites Spektrum an Einkaufsmöglichkeiten bietet.

Konditionen

-Alle Wohnungen gekühlt
-Alle Wohnungen mit Sonnenschutz
-Hochwertige Einbauküche
-Eichenparkettböden
-Moderne Verfliesung in den Badezimmern
-Fast alle Wohnungen mit Freifläche (Balkon, Garten, Loggia oder Terrasse)

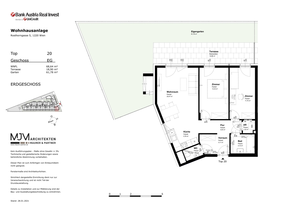
Grundriss

Plan 0

Fakten

Objektnummer:
4724/15053
Objekttyp:
Wohnung
Terrasse:
1
Balkonfläche:
80,42 m²
Wohnfläche:
68,64 m²
Gartenfläche:
61,78 m²
Zimmer:
3
Stockwerk:
EG
Baujahr:
2021
Zustand:
Gepflegt
Verfügbar ab:
nach Vereinbarung

Preisdetails

Nettomiete:
989,10 €
Betriebskosten netto:
120,12 €
Monatliche Kosten USt.:
110,92 €
Gesamtmiete:
1.220,14 €
Bruttomiete:
1.109,22 €
Betriebskosten brutto:
132,13 €
Betriebskosten brutto:
120,12 €
Kaution:
5 Bruttomonatsmieten
Provision:
Gemäß Erstauftraggeberprinzip bezahlt der Abgeber die Provision.

Energieeffizienz

HWB:
26.75 kWh/(m²*a)
Klasse HWB:
B
fGEE:
0.74
Klasse fGEE:
A
Energieausweisart:
Energiebedarfsausweis
Gültig bis:
09.04.2029

Ansprechpartner

Anfrage
Max. 500 Zeichen
Ich habe die Datenschutzvereinbarung gelesen und verstanden, und ich stimme der Verarbeitung meiner persönlichen Daten wie darin beschrieben zu. *