• LED Beleuchtung im gesamten Gebäude 
• Absperrbarer Fahrradabstellraum 
• 2 Raucherbalkone mit je 31 m² im 1.OG 
• 65 m² Dachterrasse mit herrlichem Ausblick, die allen Mietern zur Verfügung steht 
• Hochwertige Fassade mit außenliegendem Sonnenschutz
• elektronische Zutrittskontrolle
• Attraktive Eingangsbereiche
• Doppelböden, abgehängte Decken
• Kühlung über Kühlbalken 
• Temperatur raumweise regelbar 
• 2-facher Luftwechsel in den Büroräumen 
• 6-facher Luftwechsel in den Meetingräumen 
• öffenbare Fenster Besonderheiten
                
                    Weitläufige Grünlage am Wienerberg, ausgezeichnete Anbindung an den öffentlichen und Individualverkehr sowie die große Auswahl von Freizeit- und Sportangebot vervollständigen diesen Standort.
Öffentliche Verkehrsanbindung:
U-Bahn: U6 Philadelphiabrücke
Bus: 7A, 15A, 62A
Straßenbahn: 62
S-Bahn, Badner Bahn und Regionalzüge Bahnhof Wien Meidling
                
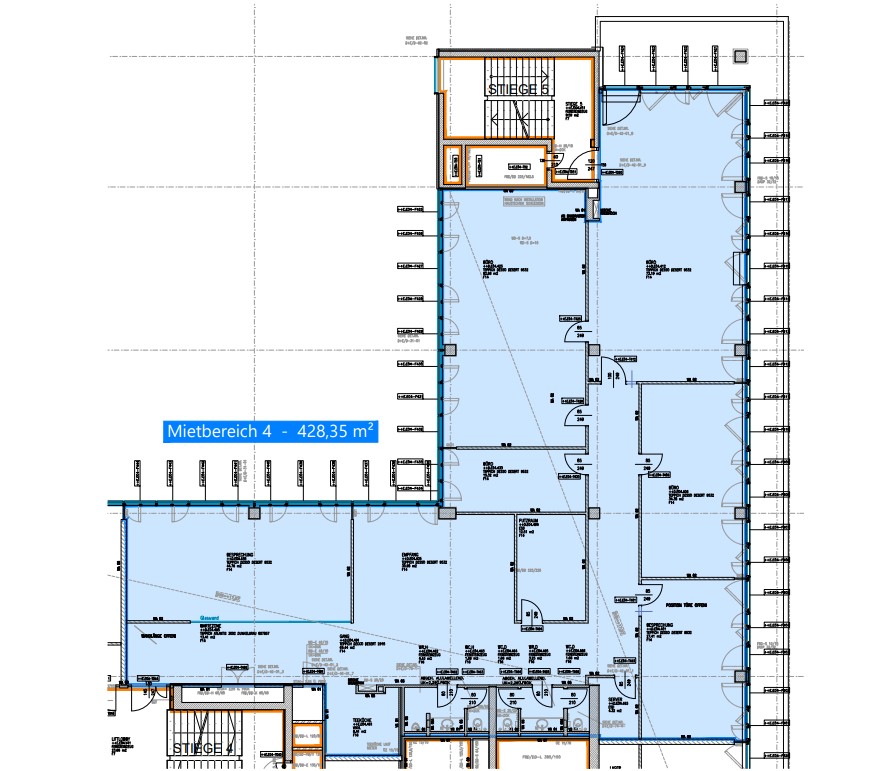
                    Miete Büro: EUR 15,60-15,90/m²
BK Büro: EUR 5,60/m² (inkl. Heizung und Kühlung)
Alle Preisangaben verstehen sich pro Monat zzgl. 20% Umsatzsteuer.
                
 
                
                                    
                            
                    