1230 Wien, Liesinger Flur Gasse 2 c außen4
1230 Wien, Liesinger Flur Gasse 2 c innen
1230 Wien, Liesinger Flur Gasse 2 c außen1
1230 Wien, Liesinger Flur Gasse 2 c außen3

Gesamtes Bürogebäude Liesing

Liesinger-Flur-Gasse 2c

Beschreibung

Das derzeit als Schulungsgebäude genutzte Bürogebäude wird kurzfristig zur Gänze bestandsfrei. Dadurch ergibt sich die Möglichkeit ein gesamtes Single-Tenant-Gebäude zu mieten oder kaufen.

Gebäude derzeit: 5.890 m²
Bürofläche (EG-6.OG): ca. 5.253 m²
Garage: 56 Stellplätze
Außenparkplatz: 36 Stellplätze
Grundstück: 4.200 m²

Ausstattung

- 2 Treppenhäuser mit 2 Personenlifte (KG-6.OG)
- Fassade teilweise mit Metall- und Glaskonstruktion verkleidet
- Öffenbare Kunststofffenster mit Thermoverglasung
- innen liegendem Sonnenschutz
- Kühlung und Beheizung mittels Fan Coils/Anschluss Fernwärme
- Lichte Höhe der Büroflächen beträgt 2,85 m
- Brandmeldeanlage mit TUS-Anschluss
- Tiefgarge mit elektronischer Schrankenanlage

Lage und Verkehrsanbindung

Das Gebiet ist durch den nahegelegenen Autobahnknoten Vösendorf bzw. durch die Abfahrt Brunn am Gebirge der Wiener Außenringautobahn (A21, S1, A2) optimal an den Individualverkehr angebunden. Auch die öffentliche Anbindung an das Verkehrsnetz ist sehr gut. Die U6 Station Perfektastraße befindet sich nur wenige Gehminuten entfernt. Darüber hinaus ist die Autobuslinie 46A vorhanden. Der Bahnhof Wien Meidling ist in nur 16 Minuten mit der U6 zu erreichen, welcher durch die Schnellbahnen sowie durch die Regionalzüge eine schnelle Anbindung zum Knotenpunkt Wien Mitte sowie eine direkte Verbindung zum Flughafen Wien Schwechat gewährleistet.

Konditionen

Miete Büro: EUR 9,50/m²
BK Büro: werden nachgereicht

Der Mietpreis versteht sich pro Monat zzgl. 20% Umsatzsteuer.

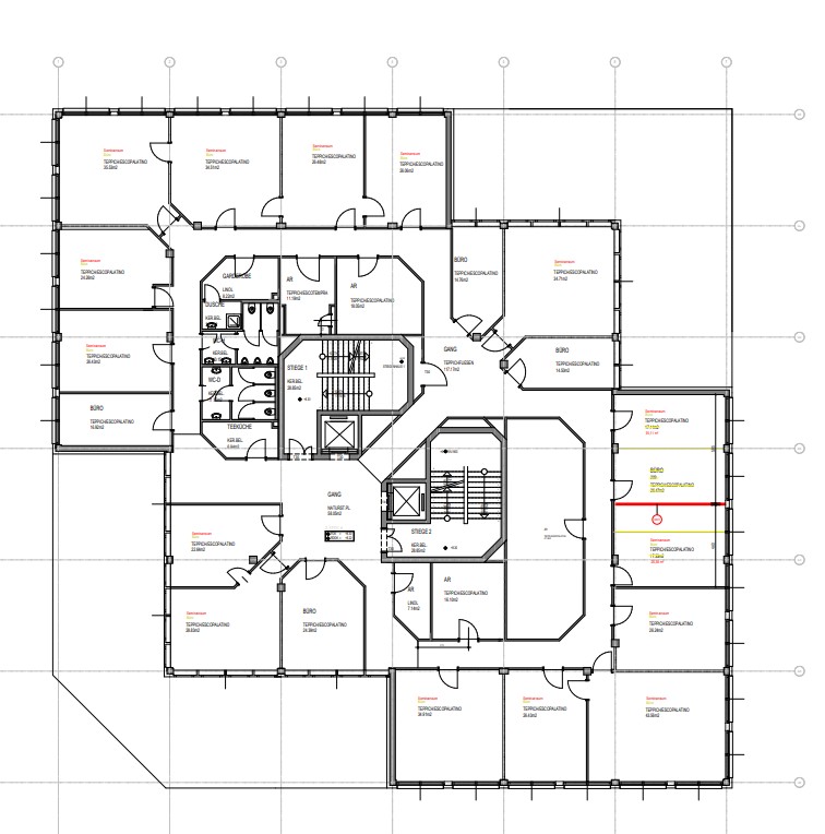
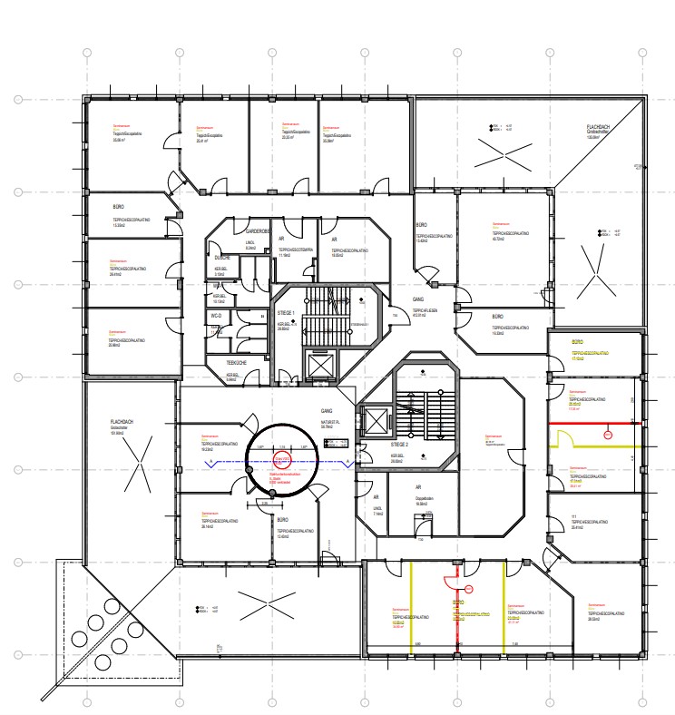
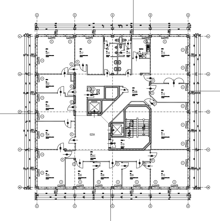
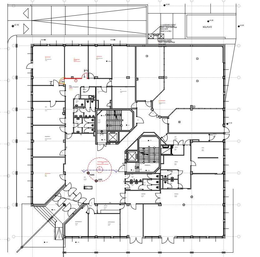
Grundriss

Plan 0

Fakten

Objektnummer:
2021-01007
Objekttyp:
Büro
Teilbare Fläche ab:
495 m²
Nutzfläche:
5.253 m²
Gesamtfläche:
5.253 m²
Baujahr:
1996
Verfügbar ab:
Q3 2026 / tlw. sofor

Preisdetails

Miete/m² netto:
9,50 €
Provision:
2 BMM zuzüglich Ust.

Energieeffizienz

HWB:
170.00 kWh/(m²*a)

Ansprechpartner

Anfrage
Max. 500 Zeichen
Ich habe die Datenschutzvereinbarung gelesen und verstanden, und ich stimme der Verarbeitung meiner persönlichen Daten wie darin beschrieben zu. *