Grünblick Parkseite 2
Grünblick Parkseite
Grünblick Eingang

GRÜNBLICK - Gewerbeeinheiten im EG

Meiereistraße 14

Beschreibung

Am Rande des Grünen Prater, zwischen Messe Wien und Ernst-Happel-Stadion, liegt eines der nachhaltigsten Stadtquartiere Österreichs: das Viertel Zwei.

Im 2025 fertig gestelltem Wohnturm "Grünblick" werde nun die Gewerbeflächen im EG als Miete oder Kauf angeboten. Ob diese als Gastronomie, Cafe oder Supermarkt verwendet werden oder als Büro kann mit dem zukünftigen Nutzer individuell abgestimmt werden.

Direkt neben dem Grünblick wird gerade der 120 m hohe Büroturm "Weitblick", welcher neben einem Hotel auch hochwertige Büroflächen bieten wird.

verfügbare Einheiten:
Top 1 - ca. 815 m² - großzügiges Portal zur Meiereistraße
Top 4 - ca. 534 m² zzgl. 119 m² Außenfläche
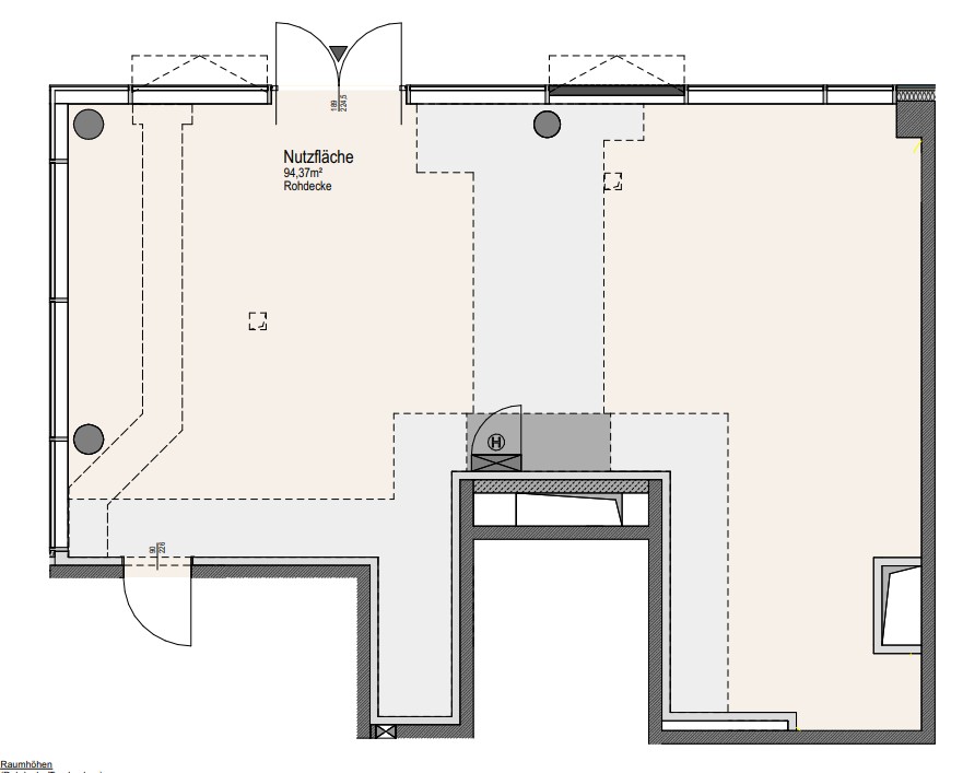
Top 5 - ca. 94 m²

Ausstattung

- Glasportalfassade: optimale Sichtbarkeit und vielfältige Werbemöglichkeiten.
- Raumhöhe: Lichte Raumhöhe bis zu 4,8 m
- Energieversorgung: Nachhaltige, CO2-schonend durch das Anergienetz Energie Krieau.
- Zertifizierung: Gold (ÖGNI).
- Anlieferung: Ladehof im 2. Untergeschoss, über TG-Zufahrt (Top 1: Ebenerdige Anlieferung
über Meiereistraße).
- Gastronomie: Technische Infrastruktur bereits vorhanden
- Außenbereiche

Lage und Verkehrsanbindung

Neben der Infrastruktur des VIERTEL ZWEI bietet das wenige Meter entfernte Stadion Center zahlreiche Restaurants und Geschäfte. Der Grüne Prater befindet sich unmittelbar angrenzend.

öffentliche Verkehrsanbindung:
U-Bahn: U2 Stadion
Straßenbahn: 1
Bus: 77A, 82A

Konditionen

Miete Gewerbeflächen: EUR 20,00/m²/Monat
BK Gewerbeflächen: abhängig von der Nutzung
Kaufpreise: auf Anfrage

Alle Preise verstehen sich netto zzgl. Umsatzsteuer.

Grundriss

Plan 0

Fakten

Objektnummer:
2026-05408
Objekttyp:
Einzelhandel
Nutzfläche:
1.846 m²
Gesamtfläche:
30.000 m²
Baujahr:
2025
Verfügbar ab:
sofort verfügbar

Preisdetails

Miete/m² netto:
20,00 €
Provision:
3 BMM

Energieeffizienz

HWB:
21.80 kWh/(m²*a)

Ansprechpartner

Alexander Fenzl

Anfrage
Max. 500 Zeichen
Ich habe die Datenschutzvereinbarung gelesen und verstanden, und ich stimme der Verarbeitung meiner persönlichen Daten wie darin beschrieben zu. *