20251212_121725173_iOS
20251212_121741666_iOS
20251212_121755853_iOS
20251212_121826784_iOS
20251212_121930432_iOS
20251212_122001854_iOS
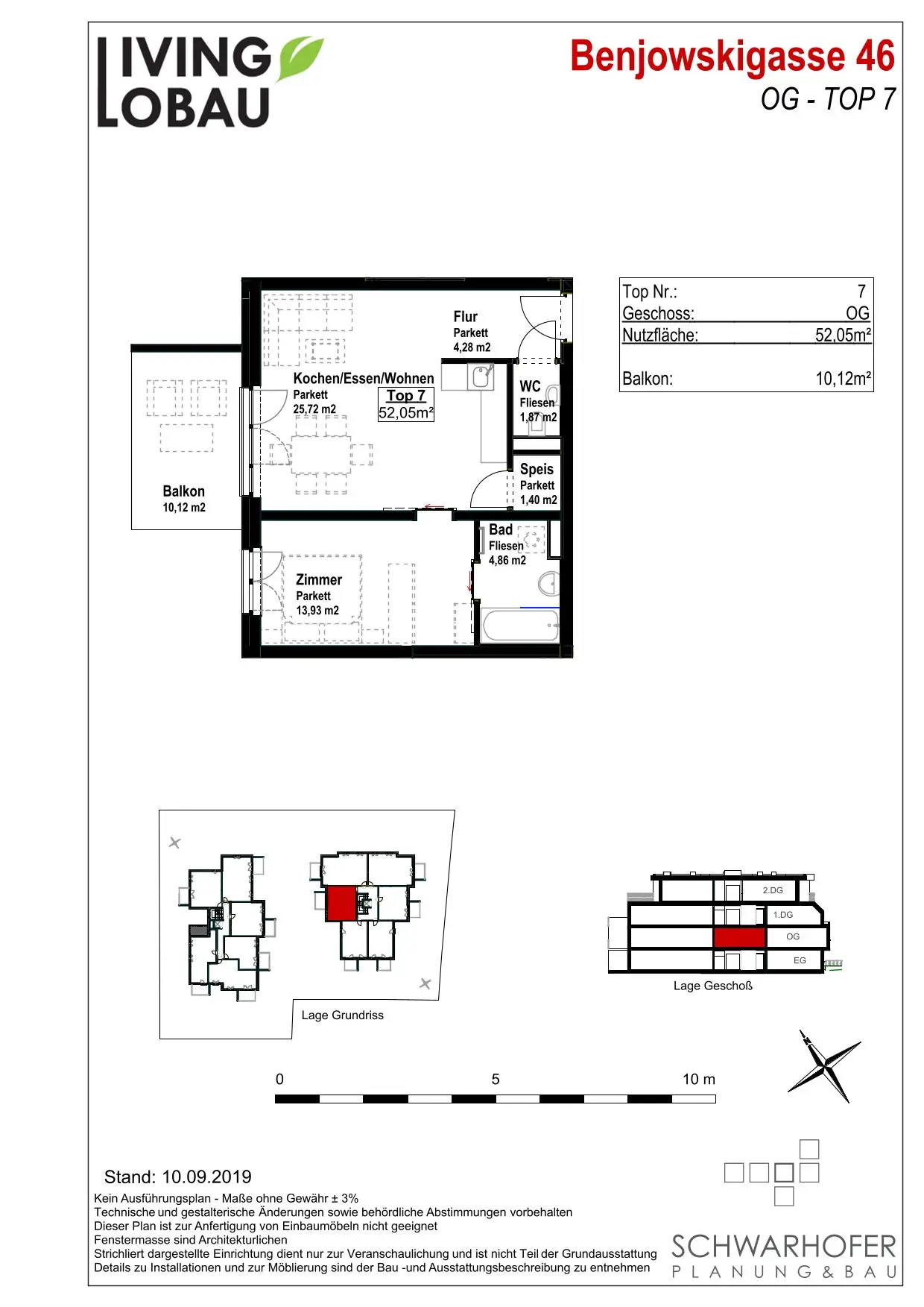
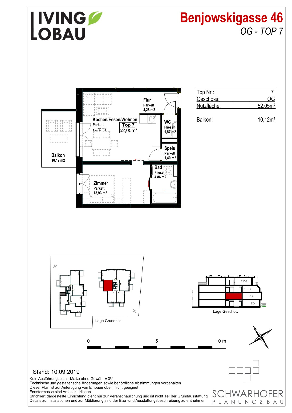
46_Top7
Screenshot 2025-01-10 103542
Screenshot 2025-01-10 103657

Helle 2 Zimmer Wohnung in ruhiger Lage

Benjowskigasse 44-46

Beschreibung

Attraktive Wohnlage in der Donaustadt

Die neu errichtete Wohnhausanlage in der Benjowskigasse 44-46 bietet modernes Wohnen in einer ruhigen Seitenstraße der Groß-Enzersdorfer-Straße, mitten im Herzen des 22. Bezirks von Wien. Das Projekt besteht aus zwei nebeneinanderliegenden Gebäuden, die durch zeitgemäße Architektur und funktionale Gestaltung überzeugen.

Mit einer Gesamtnutzfläche von rund 2.700 m² bietet die Anlage Wohnraum für unterschiedliche Ansprüche. Die Gebäude wurden nach modernen Standards errichtet und bieten durchdachte Grundrisse sowie hochwertige Materialien und Ausstattung.

Die Benjowskigasse liegt in einem beliebten Wohngebiet mit einer guten Balance zwischen urbanem Flair und grüner Umgebung. Einkaufsmöglichkeiten, Schulen, Kindergärten und Freizeiteinrichtungen befinden sich in der näheren Umgebung, sodass die Anlage sowohl für Familien als auch für Singles oder Paare eine ideale Wahl darstellt.

Lage und Verkehrsanbindung

Dank der ausgezeichneten Lage profitieren die Bewohner von einer guten öffentlichen Anbindung: Mehrere Buslinien sowie die Straßenbahnlinie 25 sind bequem zu Fuß erreichbar. Die nächstgelegene U-Bahnstation der Linie U2 ist nur etwa 1,5 km entfernt und ermöglicht eine schnelle Verbindung ins Stadtzentrum und zu weiteren Zielpunkten in Wien.

Fakten

Objektnummer:
2025-1220-7
Objekttyp:
Wohnung
Balkon:
1
Balkonfläche:
10,12 m²
Wohnfläche:
52,05 m²
Zimmer:
2
Schlafzimmer:
1
Badezimmer:
1
Stockwerk:
2
Baujahr:
2017
Zustand:
Gepflegt
Verfügbar ab:
Nach Vereinbarung

Preisdetails

Nettomiete:
728,70 €
Betriebskosten netto:
132,73 €
Gesamtmiete:
947,57 €
Bruttomiete:
801,57 €
Garage Kosten brutto:
97,44 €
Betriebskosten brutto:
146,00 €
Kaution:
2.843,00 €
Provision:
Provisionsfrei für den Mieter

Energieeffizienz

HWB:
26.47 kWh/(m²*a)
Klasse HWB:
B
fGEE:
0.61
Klasse fGEE:
A+
Ausstellung:
ab dem 1.5.2014
Gültig bis:
20.09.2027

Ansprechpartner

Anfrage
Max. 500 Zeichen
Ich habe die Datenschutzvereinbarung gelesen und verstanden, und ich stimme der Verarbeitung meiner persönlichen Daten wie darin beschrieben zu. *