Wohnzimmer
Wohnzimmer mit Bad, WC und Eingangsbereich
Wohnzimmer mit Bad, WC und Eingangsbereich
Küchennische
Ausblick
Loggia Bereich Wohnzimmer
Badezimmer
Gästetoilette
Schlafzimmer
Schlafzimmer
Visualisierung 3-Zimmer Variante
Visualisierung Eingangsbereich
Visualisierung Wohnzimmer
Visualisierung Wohnzimmer
Visualisierung Schlafzimmer
Visualisierung Schlafzimmer
Visualisierung Kleineres Schlafzimmer
Visualisierung Schlafzimmer
Visualisierung Badezimmer
Visualisierung Toilette

Hoch hinaus: 2,5 Zimmer, 21. OG, Loggia, Kellerabteil, 3-Zimmer-Ausbauoption möglich |MISCHEK TOWER

Leonard-Bernstein-Straße 8

Beschreibung

Zum Verkauf steht diese lichtdurchflutete 2,5-Zimmer-Wohnung mit südseitiger Loggia und beeindruckendem Weitblick über Wien im 21. Obergeschoss des Mischek Towers in 1220 Wien.

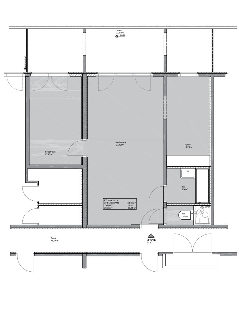
Die Wohnung verfügt über eine Wohnfläche von ca. 63,64 m² sowie eine großzügige Loggia mit ca. 22,81 m², die von jedem Raum begangen werden kann, und bietet somit ein besonderes Wohngefühl über den Dächern der Stadt. Durch die südseitige Ausrichtung genießen Sie helle Räume und eine freundliche Wohnatmosphäre.

Der Grundriss gliedert sich in einen großzügigen Wohnraum (ca. 33,13 m²), ein Schlafzimmer (ca. 13,40 m²), eine separate Küche (ca. 11,29 m²), ein Badezimmer mit Badewanne sowie ein separates WC.

Unter den Bildern befinden sich einerseits Fotos und der Grundriss des Ist-Zustandes, sowie zwei alternative Grundriss-Varianten samt Visualisierungen, die zusätzliche Gestaltungsmöglichkeiten aufzeigen. Die alternativen Grundrisse zeigen die Wohnung als 3-Zimmer-Wohnung.

Die Wohnung wird inklusive Küche und Badezimmöblierung übergeben.

Ausstattung

Der Mischek Tower wurde im Jahr 2000 fertiggestellt und zählt zu den markanten Wohngebäuden im Bereich Kaisermühlen.

Das Gebäude verfügt über:
- Concierge-Service
- mehrere Aufzüge
- Waschküche
- Tiefgarage im Haus
- Fahrradabstellraum

Beheizt wird mittels Fernwärme.

Die Wohnung verfügt über:
- südseitige Loggia mit Weitblick
- separate Küche
- Badezimmer mit Badewanne
- separates WC
- großzügigen Wohnbereich
- große Fensterflächen mit viel Tageslicht

Lage und Verkehrsanbindung

Die Liegenschaft befindet sich in der Leonard-Bernstein-Straße 8 im 22. Bezirk (Kaisermühlen) und überzeugt durch ihre ausgezeichnete Infrastruktur sowie die Nähe zu beliebten Naherholungsgebieten.

Unweit des Erholungsgebietes Donaupark und der Alten Donau gelegen, bietet der Standort zahlreiche Freizeit- und Sportmöglichkeiten sowie hohe Lebensqualität.

Die Nahversorgung ist sehr gut: Supermärkte, Bäckereien, Banken, Post sowie medizinische Einrichtungen befinden sich in unmittelbarer Umgebung. Schulen und Kindergärten sind ebenfalls rasch erreichbar.

Die öffentliche Verkehrsanbindung ist hervorragend (U1 Kaisermühlen-VIC; 20A Wallenberggasse; 92A Schüttaustraße in fußläufiger Distanz), ebenso besteht eine gute Anbindung an das übergeordnete Straßennetz.

Die Kombination aus urbaner Infrastruktur und Grün- bzw. Wasserflächen macht diesen Standort besonders attraktiv.

Donau City, Vienna International Centre, Austria Center, Kaisermühlen VIC

Grundriss

Plan 0

Fakten

Objektnummer:
2026-22-8-21-10
Objekttyp:
Wohnung
Loggia:
1
Balkonfläche:
22,81 m²
Wohnfläche:
63,64 m²
Zimmer:
2,5
Schlafzimmer:
1
Badezimmer:
1
Toilette:
1
Baujahr:
2000
Zustand:
Gepflegt
Verfügbar ab:
sofort

Preisdetails

Kaufpreis:
475.000,00 €
Provision:
3% zuzüglich Ust.

Energieeffizienz

HWB:
36.70 kWh/(m²*a)
Klasse HWB:
B
fGEE:
1.22
Klasse fGEE:
C

Ansprechpartner

Anfrage
Max. 500 Zeichen
Ich habe die Datenschutzvereinbarung gelesen und verstanden, und ich stimme der Verarbeitung meiner persönlichen Daten wie darin beschrieben zu. *