1010 Wien, Kärntner Ring 6 außen quer
1010 Wien, Kärntner Ring 6 außen
1010 Wien, Kärntner Ring 6 Büro 4
1010 Wien, Kärntner Ring 6 Empfang
1010 Wien, Kärntner Ring 6 Aufzug
1010 Wien, Kärntner Ring 6 Büro 2
1010 Wien, Kärntner Ring 6 Büro
1010 Wien, Kärntner Ring 6 Atrium
1010 Wien, Kärntner Ring 6 Büro 3

KÄRNTNERRINGHOF

Kärntner Ring 5-7

Beschreibung

Das traditionsreiche Gebäude wird derzeit einer umfassenden Sanierung unterzogen und auf den neuesten Stand der Technik gebracht. Im Zuge dessen entstehen im ehemaligen Mall-Bereich des 1. Obergeschoßes moderne, zeitgemäße Büroflächen mit hoher Aufenthaltsqualität.
Der Hauptzugang zu den Büroeinheiten erfolgt über den Kärntner Ring. Ein Portier steht den Besuchern während der Bürozeiten für Auskünfte und Unterstützung zur Verfügung und unterstreicht den repräsentativen Charakter des Hauses. Die Büroflächen sind grundsätzlich für ein Open-Space-Konzept konzipiert, die Raumaufteilung kann jedoch flexibel und individuell an die Anforderungen der zukünftigen Mieter angepasst werden.

verfügbare Flächen:
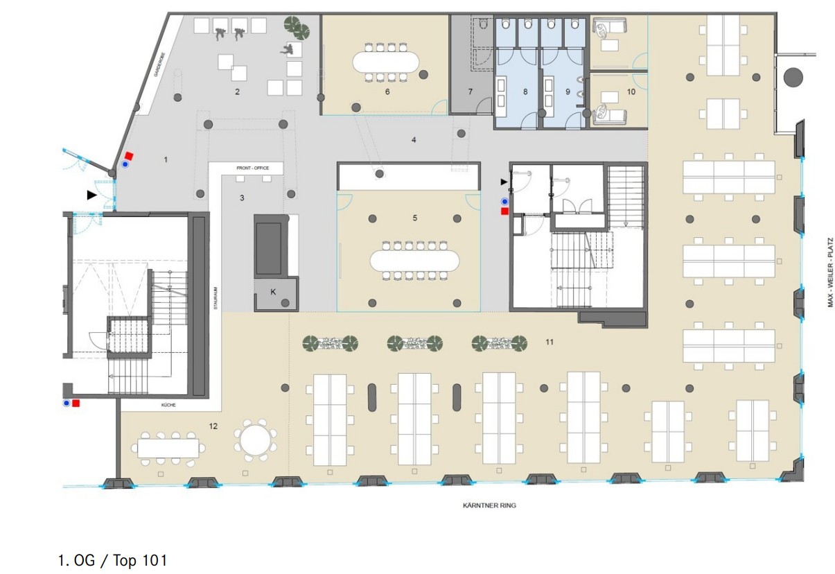
1.OG - 101 - ca. 726 m²
1.OG - 102 - ca. 806 m²
1.OG - gesamt - ca. 1.536 m²
2.OG - 205+206 - ca. 409 m²
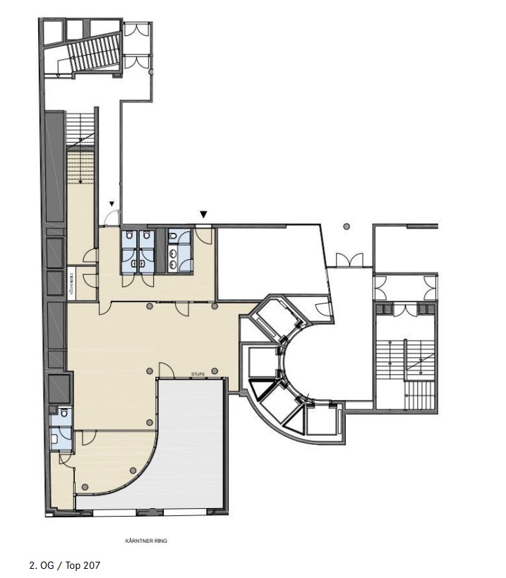
2.OG - 207 - ca. 163 m²
2.OG - gesamt: ca. 572 m²
3.OG - 303 - 101 m²
4.OG - 402 - 351 m²

Ausstattung

Die Einheiten 101 und 102 befinden sich derzeit im Edelrohbau. Alle weiteren Einheiten sind noch im Ausbaustandard des Vormieters und können entweder in diesem Zustand übernommen oder in enger Abstimmung mit dem künftigen Mieter individuell nach dessen Anforderungen ausgebaut werden.

- Teppichboden
- Fliesenboden
- Parkettboden
- Portier
- Fernwärme
- Kühlung mittels Fan-Coils

Lage und Verkehrsanbindung

Im Herzen der Wiener Innenstadt, direkt an der mondänen Ringstraße und nur wenige Gehminuten von der pulsierenden Kärntner Straße entfernt, befindet sich der repräsentative Kärtnerringhof.

öffentliche Verkehrsanbindung:
U-Bahn: U1, U2, U4
Straßenbahn: 5, 33, 37, 38, 40, 41, 42 und 43
Bus: 2A, 4A, 48A, 59A, 77A
Bahn: Badner Bahn

Konditionen

Miete Büro: EUR 25,00 - 28,00/m²
BK Büro: EUR 9,35/m²

Alle Preise verstehen sich pro Monat zzgl. Umsatzsteuer.

Grundriss

Plan 0

Fakten

Objektnummer:
2026-05439
Objekttyp:
Büro
Teilbare Fläche ab:
163 m²
Nutzfläche:
4.665 m²
Gesamtfläche:
25.000 m²
Baujahr:
2026
Verfügbar ab:
teilweise sofort

Preisdetails

Miete/m² netto ab:
25,00 €
Miete/m² netto bis:
28,00 €
Betriebskosten pro m²:
9,35 €
Provision:
3 BMM

Energieeffizienz

HWB:
18.01 kWh/(m²*a)

Ansprechpartner

Anfrage
Max. 500 Zeichen
Ich habe die Datenschutzvereinbarung gelesen und verstanden, und ich stimme der Verarbeitung meiner persönlichen Daten wie darin beschrieben zu. *