1020 Wien, Lassallestraße 3 außen 2
1020 Wien, Lassallestraße 3 Rückseite
1020 Wien, Lassallestraße 3 - LAS 3 Lobby
1020 Wien, Lassallestraße 3 - LAS 3 Eingangsbereich
Ubahn Praterstraße

LAS 3 - Bürogebäude am Praterstern

Lassallestraße 3

Beschreibung

Das Bürogebäude LAS 3 bietet 10 Geschoße mit sehr attraktivem Blick auf den Prater. Die zentrale Lobby im EG wurde neu gestaltet. Ebenso wurde die Beschilderung und das Leitsystem neu gestaltet. Für die Mieter steht darüber hinaus eine große Tiefgarage, Duschen und ein allgemeiner Fahrradraum zur Verfügung. Die Büroflächen werden nach den Anforderungen des zukünftigen Mieters durch den Vermieter modernisiert und adaptiert.

verfügbare Büroflächen:
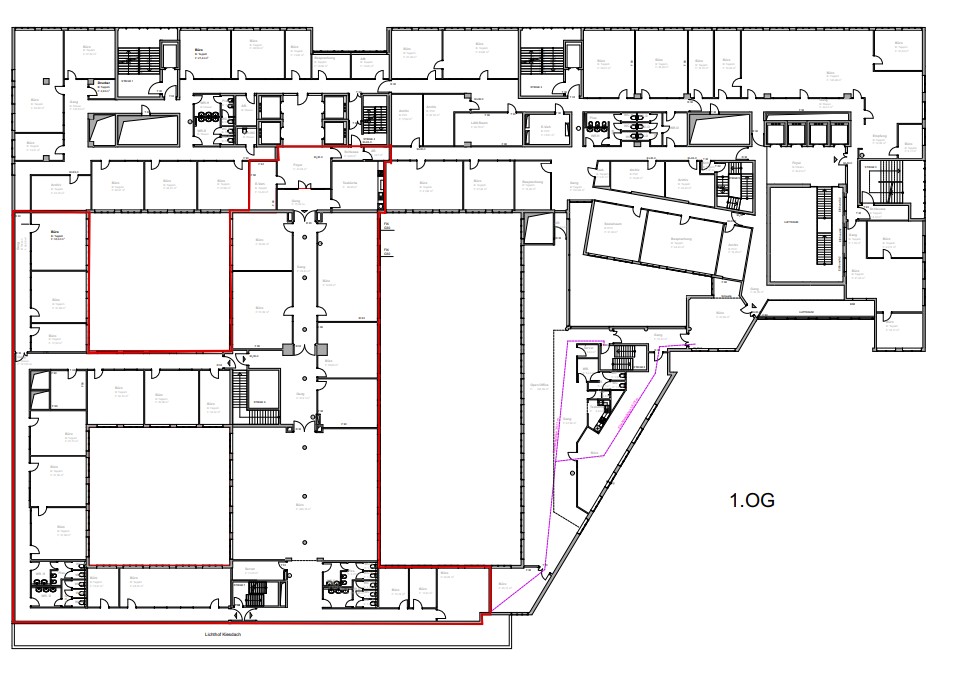
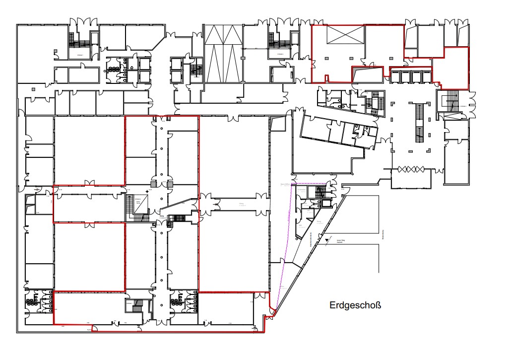
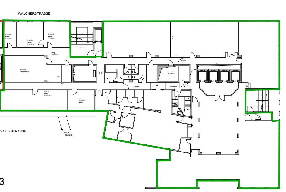
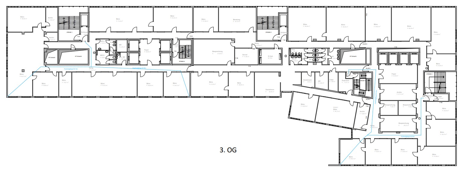
9. OG gesamt: 1782 m² teilbar in: 503 / 1279 m²
10. OG: 1254 m²
gesamt Flächen: 3036 m²

Ausstattung

- Kabelkanäle
- Kühlung mittels FanCoils
- mechn. Be- und Entlüftung
- Portier (möglich)
- in-house Garage
- Lager im UG
- Blick über Wien bzw. den Prater
- öffenbare Fenster
- Deckenleuchten
- ausgestattete Teeküchen / Sanitärbereiche
- IT-Verkabelung (Vormieter)

Lage und Verkehrsanbindung

Direkt am Praterstern und somit perfekt öffentlich angebunden. Im Umfeld steht zahlreiche Lokale und Geschäfte des täglichen Bedarfs zur Verfügung. Ferner wird sich ein großer MERKUR-Markt mit Bistro im Nachbargebäude ansiedeln.

öffentliche Vekehrsanbindung:
U-Bahn: U1, U2 Praterstern
Straßenbahn: O
Bahn: S-Bahn Praterstern

Konditionen

Miete: EUR 15,50/m²
BK: dzt. EUR 2,83/m²
HK und Kühlung Akkonto: dzt. EUR 1,30/m²

Kaution: 3-6 BMM

Alle Preise verstehen sich pro Monat zzgl. 20% Umsatzsteuer.

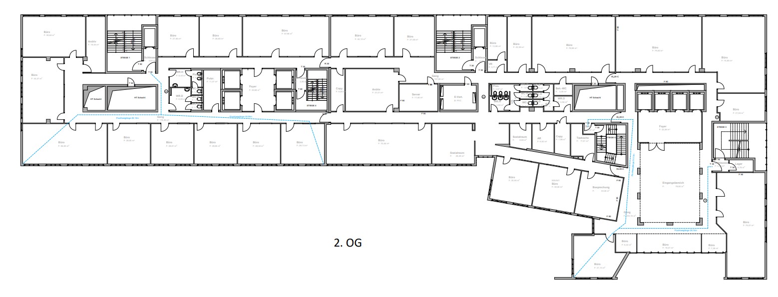
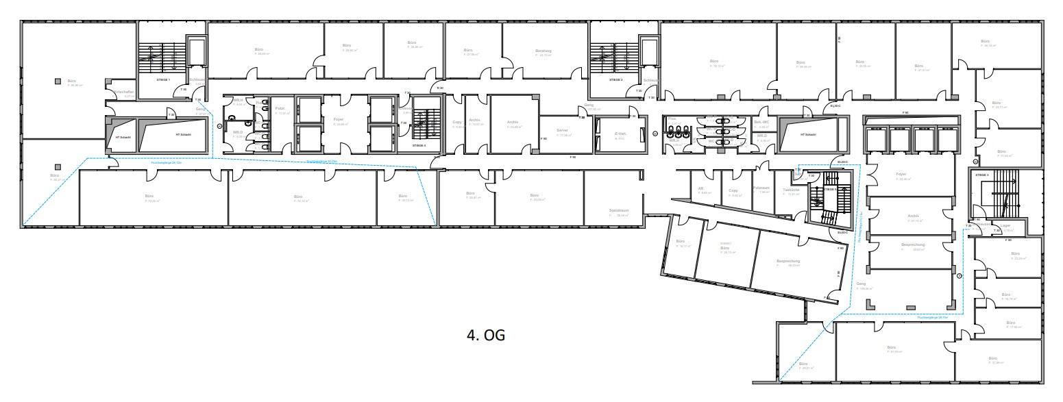
Grundriss

Plan 0

Fakten

Objektnummer:
2020-00816
Objekttyp:
Büro
Teilbare Fläche ab:
503 m²
Nutzfläche:
3.036,29 m²
Gesamtfläche:
22.500 m²
Baujahr:
1990
Verfügbar ab:
nach Adaptierung

Preisdetails

Miete/m² netto ab:
15,00 €
Miete/m² netto bis:
16,00 €
Garage Kosten brutto:
120,00 €
Betriebskosten pro m²:
2,83 €
Kaution:
3-6 BMM je nach Bonität
Provision:
3 BMM zuzüglich Ust.

Energieeffizienz

HWB:
38.90 kWh/(m²*a)

Ansprechpartner

Anfrage
Max. 500 Zeichen
Ich habe die Datenschutzvereinbarung gelesen und verstanden, und ich stimme der Verarbeitung meiner persönlichen Daten wie darin beschrieben zu. *