LOFT Schottenfeldgasse  Saal
LOFT Schottenfeldgasse Saal von hinten
LOFT Schottenfeldgasse Sanitärbereiche
LOFT Schottenfeldgasse Eingangsbereich
LOFT Schottenfeldgasse Nebenfläche
LOFT Schottenfeldgasse

Lichtdurchflutetes LOFT mit Industriecharakter

Schottenfeldgasse 62

Beschreibung

Das rund 505 m² große Loft befindet sich in absoluter Hofruhelage eines gepflegten Jahrhundertwendehauses. Die beeindruckende Raumhöhe, die sichtbare Stahlträgerkonstruktion und großzügige Dachflächenfenster verleihen der Fläche einen klaren Industriecharakter mit außergewöhnlicher Lichtqualität.

Die offene Struktur ermöglicht flexible Nutzungskonzepte - der neue Eigentümer erwirbt einen besonders ganz besonderen Raum mit kreativer Atmosphäre.

verfügbare Fläche:
EG - ca. 505 m²

Ausstattung

- Dachfenster
- große Sanitärbereiche
- Duschen möglich
- teilweise Parkettboden
- Zentralheizung über Radiatoren
- Wärmepumpe

Lage und Verkehrsanbindung

Durch die Lage im Zentrum 7. Bezirks, zwischen Westbahnstraße und Burggasse, bietet das Umfeld zahlreiche Restaurants und Cafes. Ein Supermarkt befindet sich keine 50 m entfernt und auch die Mariahilfer Straße ist fußläufig erreichbar.

öffentliche Verkehrsanbindung:
U-Bahn: U3 Zieglergasse
Straßenbahn: 49 (Dr.-Karl-Lueger-Ring - Hütteldorf) und 5 (Westbahnhof - Praterstern)
Bus: 48A (Dr.-Karl-Lueger-Ring)

Konditionen

Kaufpreis: EUR 1.500.000,00
Betriebskosten allgemein: netto EUR 973,70
Heizkosten dzt.: netto EUR 715,47
Reparaturfonds: EUR 640,05

Derzeit ist die Fläche als Büro gewidmet.
Auf Anfrage kann eine Umbaustudio zu Wohn-Lofts übermittelt werden.

Die Nebenkosten verstehen sich pro Monat zzgl. Umsatzsteuer.

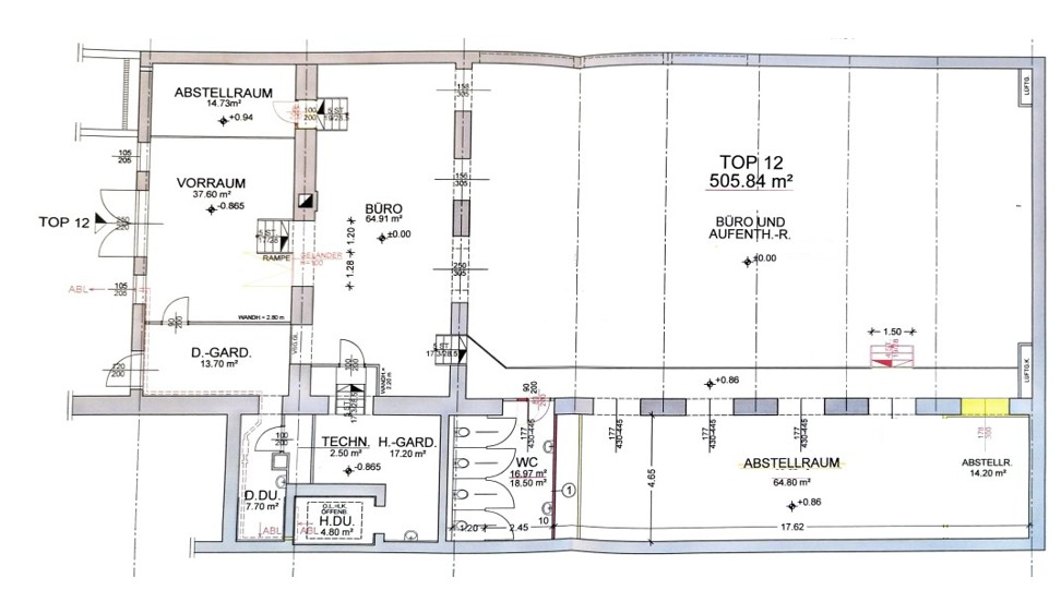
Grundriss

Plan 0

Fakten

Objektnummer:
2026-05420
Objekttyp:
Wohnung
Nutzfläche:
505,48 m²
Gesamtfläche:
3.000 m²
Baujahr:
1900
Verfügbar ab:
sofort verfügbar

Preisdetails

Kaufpreis:
1.500.000,00 €
Provision:
3% zuzüglich Ust.

Energieeffizienz

HWB:
135.30 kWh/(m²*a)
fGEE:
1.78

Ansprechpartner

Anfrage
Max. 500 Zeichen
Ich habe die Datenschutzvereinbarung gelesen und verstanden, und ich stimme der Verarbeitung meiner persönlichen Daten wie darin beschrieben zu. *