1110 Wien, LMNT außen quer
1110 Wien, LMNT außen innen 1
1110 Wien, LMNT außen Hof
1110 Wien, LMNT Lobby
1110 Wien, LMNT innen

LMNT Offices - moderne Büroflächen mit nachhaltigem Konzept

Brehmstraße 19

Beschreibung

LMNT Offices auf halbem Weg zwischen City und Flughafen bieten auf 19.033 m2 die perfekte Umgebung für Neues Arbeiten - und das zu einem unschlagbaren Preis-Leistungs-Verhältnis, sowohl bei Miete als auch Betriebskosten. Die drei Gebäudeelemente bilden eine Einheit aus hohen Aualitätsstandards, modular flexiblen Büroflächen, hochwertiger Ausstattung und verkehrsoptimaler Lage. Großzügige Terrassen, begrünte Innenhöfe, 200 PKW-Stellplätze, eine repräsentative Lobby sowie funktionale Lagerräumlichkeiten runden das Konzept ab. Die Nachhaltigkeit des Gebäudes wird durch die ÖGNIZertifizierung dokumentiert.

verfügbare Bürofläche: ca. 19.000 m² (teilbar)

Ausstattung

- Öffenbare raumhohe Fenster
- Außenliegender Sonnenschutz
- Balkon- und Terrassenflächen
- State-of-the-Art Lüftungs-, Kühlungs- und Heizungssystem (Lüftung mit - Lüftungskanälen im
- Doppelboden und Bauteilaktivierung)
- Flexible Raumaufteilung
- Flexibles Stehleuchtenkonzept mit direktem und indirektem Lichtanteil
- Videogegensprechanlage
- Begrünte Innenhöfe
- Online-Gebäudezutrittskontrolle, Einbruchsmeldeanlage mit Videoüberwachung
- Großzügige Anlieferungszonen
- Repräsentative Lobby und weitläufige Erschließungsgänge
- Behindertengerechtes WC
- Fahrradabstellräume mit Duschen
- E-Ladestationen für Autos und Fahrräder
- Anbindung an das Glasfasernetz
- ÖGNI-Silber-Zertifizierung (Logo)
- Moderne IT-Infrastruktur (Glasfaser)
- Sicherheits- und Zutrittssysteme

Lage und Verkehrsanbindung

Das architektonisch prägnante Gebäude zeichnet sich durch eine gute Sichtbarkeit von der Stadtautobahn A23 aus. Von der räumlich nahen Schnellbahn-Station sind das Wiener Stadtzentrum in etwa 7 Minuten und der Flughafen Wien-Schwechat in etwa 15 Minuten erreichbar. Straßenbahn- und Autobuslinien führen vom Bürogebäude unter anderem direkt zum Hauptbahnhof Wien.

Konditionen

Miete Büro: EUR 16,00-18,50/m²
BK Büro: EUR 3,88/m² (inkl. Heizung und Kühlung)
Miete Stellplätze: EUR 120,00/Stk.

Die Preise verstehen sich pro Monat zzgl. Umsatzsteuer.

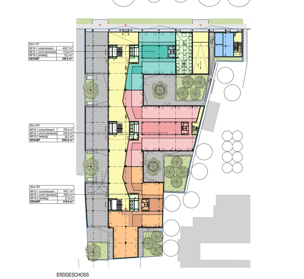
Grundriss

Plan 0

Fakten

Objektnummer:
2020-00821
Objekttyp:
Büro
Teilbare Fläche ab:
1.726 m²
Nutzfläche:
19.033 m²
Gesamtfläche:
19.033 m²
Baujahr:
2023
Verfügbar ab:
Ende 2026/2027

Preisdetails

Miete/m² netto ab:
16,00 €
Miete/m² netto bis:
18,50 €
Garage Kosten brutto:
120,00 €
Betriebskosten pro m²:
3,88 €

Ansprechpartner

Anfrage
Max. 500 Zeichen
Ich habe die Datenschutzvereinbarung gelesen und verstanden, und ich stimme der Verarbeitung meiner persönlichen Daten wie darin beschrieben zu. *