1070 Wien, Zieglergasse 6 außen
1070 Wien, Zieglergasse 6 DG
1070 Wien, Zieglergasse 6 RG
1070 Wien, Zieglergasse 6 Stiegenhaus
1070 Wien, Zieglergasse 6 Empfang
1070 Wien, Zieglergasse 6 Küche
1070 Wien, Zieglergasse 6 RG 2

LOFT Bürogebäude Mariahilfer Straße

Zieglergasse 6

Beschreibung

Die Liegenschaft bietet rund 1.993 m² vielseitig nutzbare, loftartige Büroflächen auf mehreren Ebenen und verbindet zentrale Lage mit einer angenehm ruhigen Arbeitsatmosphäre.

Die Büroflächen zeichnen sich durch helle Räume, eine offene Grundstruktur und eine flexible Raumaufteilung aus. Dadurch lassen sich sowohl moderne Open-Space-Konzepte als auch klassische Einzel- oder Teambüros problemlos realisieren. Die vorhandene Raumstruktur ermöglicht eine Anpassung an unterschiedliche Nutzungsanforderungen – von Agentur- und Kreativbüros bis hin zu klassischen Büroorganisationen.

PKW-Stellplätze stehen am Areal sowie in im unmittelbaren Umfeld zur Verfügung.

verfügbare Flächen:
gesamtes Gebäude - ca. 1.993 m²

Ausstattung

Das Gebäude befindet sich in gepflegtem Zustand und wurde zuletzt vor rund zehn Jahren umfassend saniert. Die Flächen stehen kurzfristig zur Verfügung und können nach Vereinbarung bezogen werden.

- hohe Raumhöhen (bis zu 4 Meter)
- Kühlung mittels Decken-FanCoils, Heizung über Zentralheizung
- zentraler, gekühlter Serverraum & IT-Verkabelung über Bodenkanal
- barrierefreier Zugang über Lift
- Küchen in allen Ebenen

Lage und Verkehrsanbindung

Die Liegenschaft ist lediglich wenige Meter von der Mariahilfer Straße und der U-Bahn-Station "Zieglergasse" entfernt. Dadurch ist sowohl die Nahversorgung mit Supermarkt, Cafes und Restaurants als auch mit sonstigen Geschäften des täglichen Bedarfs als sehr gut zu beurteilen.

öffentliche Vekehrsanbindung:
U-Bahn: U3 Zieglergasse
Bus: 13A
Bahn: Westbahnhof

Konditionen

Miete Büro: EUR 17,00/m²
BK Büro: dzt. EUR 1,60/m² zzgl. Heizung und Kühlung
Miete Stellplatz: EUR 170,00/Stk. (5 Stk. verfügbar)

Kaution: 3 - 6 Bruttomonatsmieten

Alle Preise verstehen sich pro Monat zzgl. Umsatzsteuer.

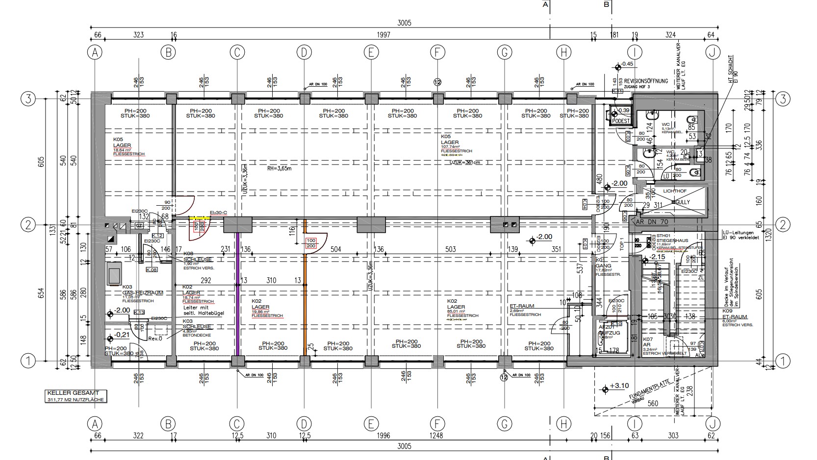
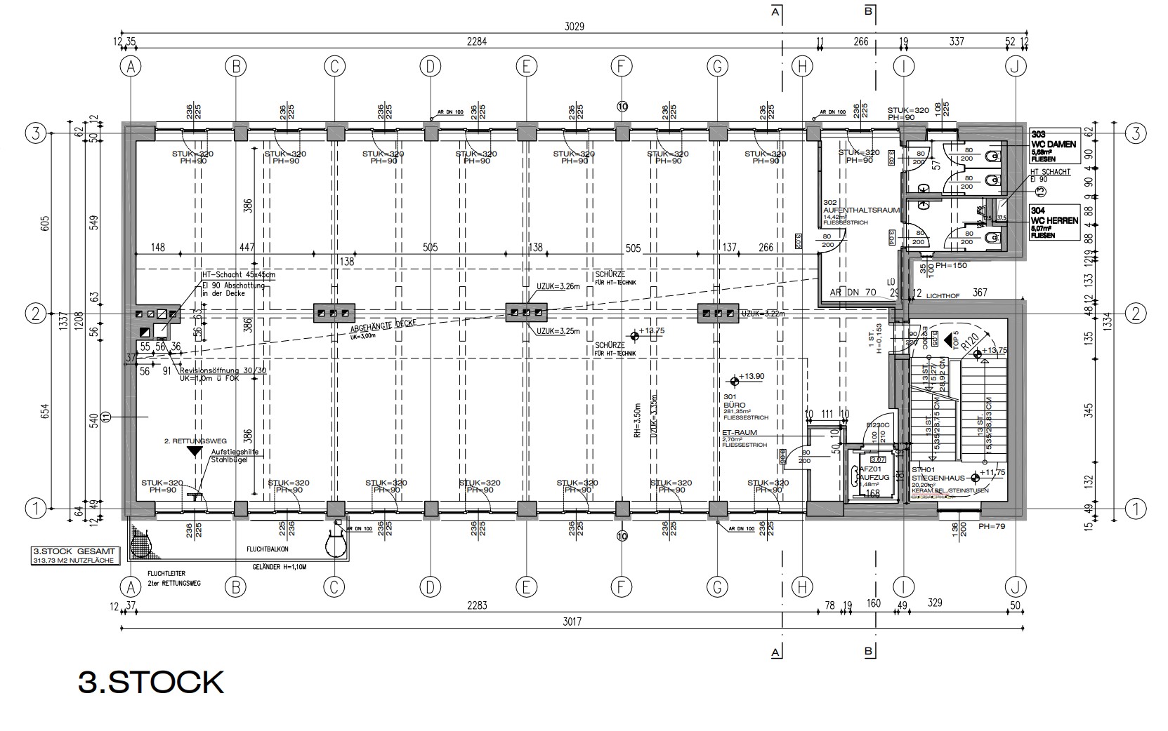
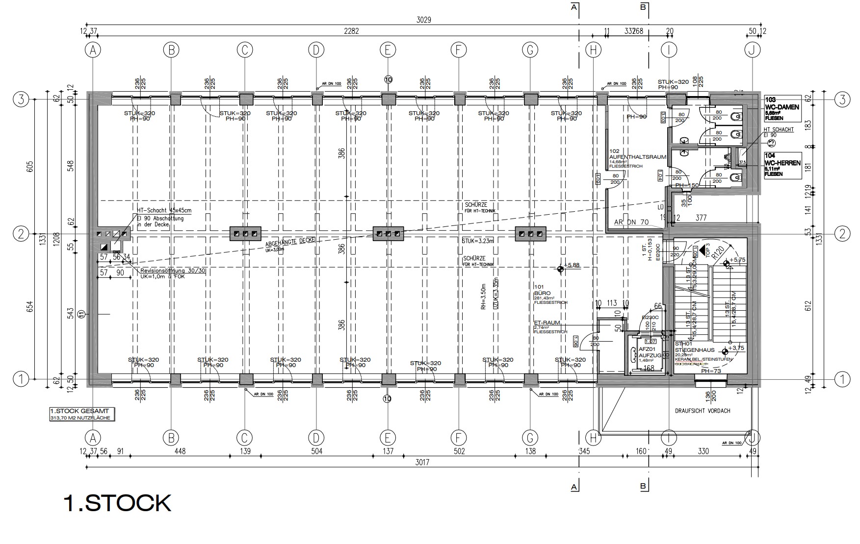
Grundriss

Plan 0

Fakten

Objektnummer:
2026-05433
Objekttyp:
Büro
Nutzfläche:
1.993 m²
Gesamtfläche:
1.993 m²
Baujahr:
1900
Verfügbar ab:
sofort verfügbar

Preisdetails

Miete/m² netto:
17,00 €
Betriebskosten pro m²:
1,60 €
Provision:
3 BMM

Energieeffizienz

HWB:
51.40 kWh/(m²*a)
fGEE:
1.05

Ansprechpartner

Anfrage
Max. 500 Zeichen
Ich habe die Datenschutzvereinbarung gelesen und verstanden, und ich stimme der Verarbeitung meiner persönlichen Daten wie darin beschrieben zu. *