7
Wohnbauen - ODO - EXT 01 - 005a
Wohnbauen - ODO - EXT 02 - 004
Wohnbauen - ODO - EXT 03 - 005
Wohnbauen - ODO - INT - 09 - 003 uncropped
1
2
3
4
5
6
8
9
10
12
13
14

ODO25 | 2 Zimmer | zwei Balkone | großzügig geschnitten | Mietbeginn ab 01.07.2026

Beschreibung

OSTERAKTION: EUR 300,- INTERSPAR-Gutschein bei Abschluss eines Mietvertrags mit Mietbeginn 01.07.2026. Gültig für Mietanbote bis einschließlich 30.04.2026.

ODO25 – Urbanes Wohnen mit Weitblick

In der Odoakergasse 25 im 16. Wiener Gemeindebezirk entsteht mit ODO25 eine moderne Wohnhausanlage, die urbanes Lebensgefühl mit hohem Wohnkomfort verbindet. Das Projekt richtet sich an Singles, Paare, Alleinerziehende und Familien gleichermaßen und bietet zeitgemäße Wohnlösungen für unterschiedliche Lebensmodelle.

Die Anlage umfasst insgesamt 61 hochwertige Wohneinheiten, überwiegend Zwei- und Drei-Zimmer-Wohnungen mit Wohnflächen von rund 30 bis 80 m². Durchdachte Grundrisse, bodentiefe Fenster und großzügige Freiflächen sorgen für helle, freundliche Räume und ein angenehmes Wohnambiente mit urbanem Charakter.

Ein besonderes Merkmal von ODO25 ist das angrenzende Hofhaus, das flexibel nutzbare Büro- oder Atelierflächen bietet. Damit eignet sich das Projekt ideal für Menschen, die Wohnen und Arbeiten an einem Ort verbinden möchten.

Die Lage überzeugt durch ihre hervorragende Anbindung an die Wiener Innenstadt sowie die Nähe zu Grün- und Erholungsräumen. ODO25 bietet damit einen idealen Ausgangspunkt für ein aktives, urbanes Leben mit hoher Lebensqualität.

Nachhaltigkeit – Elegant wohnen, bewusst leben

Nachhaltigkeit ist ein zentraler Bestandteil des Projekts ODO25. Eine energieeffiziente Bauweise, moderne Haustechnik und der Einsatz ressourcenschonender Materialien tragen zu niedrigen Betriebs- und Energiekosten bei.

Die Beheizung und Kühlung erfolgen über ein nachhaltiges Energiekonzept mit Wärmepumpe, Erdwärmesonden und Bauteilaktivierung. Begrünte Innenhofbereiche, Fassaden- und Dachflächen schaffen ein angenehmes Mikroklima und erhöhen die Aufenthaltsqualität.

E-Ladestationen für PKW sowie der bewusste Einsatz langlebiger und umweltfreundlicher Bauprodukte unterstreichen den zukunftsorientierten Anspruch des Projekts. Die angestrebte Zertifizierung nach ÖGNI/DGNB Gold bestätigt den hohen Qualitäts- und Nachhaltigkeitsstandard von ODO25.

Optional kann ein Stellplatz in der hauseigenen Tiefgarage um € 110,– brutto pro Monat angemietet werden.

Unterlagen für die Anmietung:
- Reisepass/Personalausweis
- Derzeitiger Meldezettel
- Letzten 3 Lohnzettel/Arbeitsvertrag/letzter Einkommenssteuerbescheid
- Aufenthaltstitel bei Drittstaatenangehörigen

Bezüglich Einkommensnachweis: Es darf nicht mehr als 40% des monatlichen Nettoeinkommens aller Mieter zusammen für die Miete ausgegeben werden. Sollte die Bonität nicht genügen, wird eine Bürgschaft (Einkommen aus Ö, D, CH) benötigt.

Der Immobilienmakler erklärt, dass er – entgegen dem in der Immobilienwirtschaft üblichen Geschäftsgebrauch des Doppelmaklers – einseitig nur für den Vermieter tätig ist.

Ausstattung

Fliesen, Erdwärme, Einbauküche, Personenaufzug, Nordbalkon / -terrasse, Südbalkon / -terrasse, Dusche, Kabel / Satelliten-TV, Klimaanlage, Fahrradraum

Lage und Verkehrsanbindung

ODO25 befindet sich in attraktiver Lage der Odoakergasse im 16. Wiener Gemeindebezirk und überzeugt durch eine hervorragende Anbindung an die Wiener Innenstadt sowie an zahlreiche Naherholungsgebiete. Die ausgezeichnete öffentliche Verkehrsanbindung mit mehreren Straßenbahn-, Bus- und S-Bahn-Linien ermöglicht schnelle und flexible Mobilität in alle Teile der Stadt.

Grün- und Freizeitflächen wie Wilhelminenberg, Steinhofgründe, Kongreßpark und Kongreßbad sind in wenigen Minuten erreichbar und bieten vielfältige Erholungsmöglichkeiten. Schulen, Kindergärten, medizinische Versorgung sowie Einkaufsmöglichkeiten befinden sich in unmittelbarer Nähe. Der nahegelegene Brunnenmarkt und der Yppenplatz ergänzen das Angebot durch urbanes Markt- und Gastronomieflair.

Konditionen

- Energieeffiziente Bauweise mit Wärmepumpe, Bauteilaktivierung und Erdwärmesonden
- Begrünter Innenhof sowie Fassaden- und Dachbegrünung
- E-Ladestationen für PKW
- Bodentiefe Fenster für helle Wohnräume
- Böden: Kunststoffboden, Fliesen in Nassräumen
- Heizung/Kühlung: Bauteilaktivierung (Heizen/Kühlen)
- Einbauküche mit E-Geräten

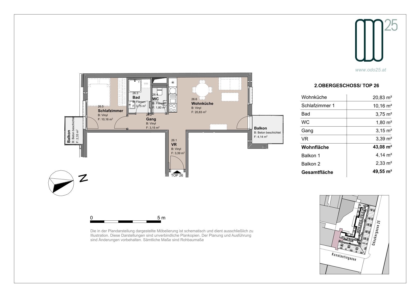
Grundriss

Plan 0

Fakten

Objektnummer:
4724/11998
Objekttyp:
Wohnung
Balkon:
1
Balkonfläche:
6,47 m²
Wohnfläche:
43,08 m²
Zimmer:
2
Badezimmer:
1
Toilette:
1
Stockwerk:
2
Baujahr:
2026
Zustand:
Erstbezug
Verfügbar ab:
01.07.2026

Preisdetails

Nettomiete:
800,44 €
Betriebskosten netto:
90,47 €
Monatliche Kosten USt.:
89,09 €
Gesamtmiete:
980,00 €
Bruttomiete:
890,91 €
Betriebskosten brutto:
99,52 €
Betriebskosten brutto:
90,47 €
Kaution:
2940 Monatsmieten
Provision:
Gemäß Erstauftraggeberprinzip bezahlt der Abgeber die Provision.

Energieeffizienz

HWB:
26.20 kWh/(m²*a)
Klasse HWB:
B
fGEE:
0.66
Klasse fGEE:
A+
Energieausweisart:
Energiebedarfsausweis
Gültig bis:
19.11.2035

Ansprechpartner

Virtuelle Tour

Anfrage
Max. 500 Zeichen
Ich habe die Datenschutzvereinbarung gelesen und verstanden, und ich stimme der Verarbeitung meiner persönlichen Daten wie darin beschrieben zu. *