1010 Wien, Bankgasse 8 außen quer
1010 Wien, Bankgasse 8 3 OG
1010 Wien, Bankgasse 8 3 OG
1010 Wien, Bankgasse EG 8  EG
1010 Wien, Bankgasse 8
1010 Wien, Bankgasse 8 3 OG
1010 Wien, Bankgasse 8 3 OG
1010 Wien, Bankgasse 8 EG
1010 Wien, Bankgasse 8 EG
1010 Wien, Bankgasse 8 EG
21010 Wien, Bankgasse 8 Küche

prunkvolle Büroflächen in bester Lage

Bankgasse 8

Beschreibung

In absoluter Bestlage des 1. Wiener Gemeindebezirks gelangen zwei repräsentative Büroflächen im traditionsreichen Concordia-Haus zur Vermietung. Der schöne Altbau („Concordiahaus“) wurde vor nun knapp 5 Jahren einer aufwändigen Generalsanierung unterzogen. Die Liegenschaft überzeugt durch ihre klassische Innenstadt-Architektur, einen eindrucksvollen Eingangsbereich sowie hochwertige Altbauelemente, die den Flächen ein besonderes, stilvolles Ambiente verleihen.

Die Büros eignen sich ideal für Unternehmen, Kanzleien, Agenturen, Beratungen oder kreative Nutzer, die einen prestigeträchtigen Standort mit urbanem Umfeld und historischem Charme suchen.

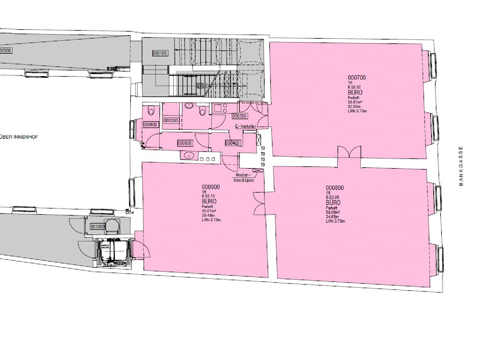
EG 107,33 m² EUR 15,00/m²/Monat
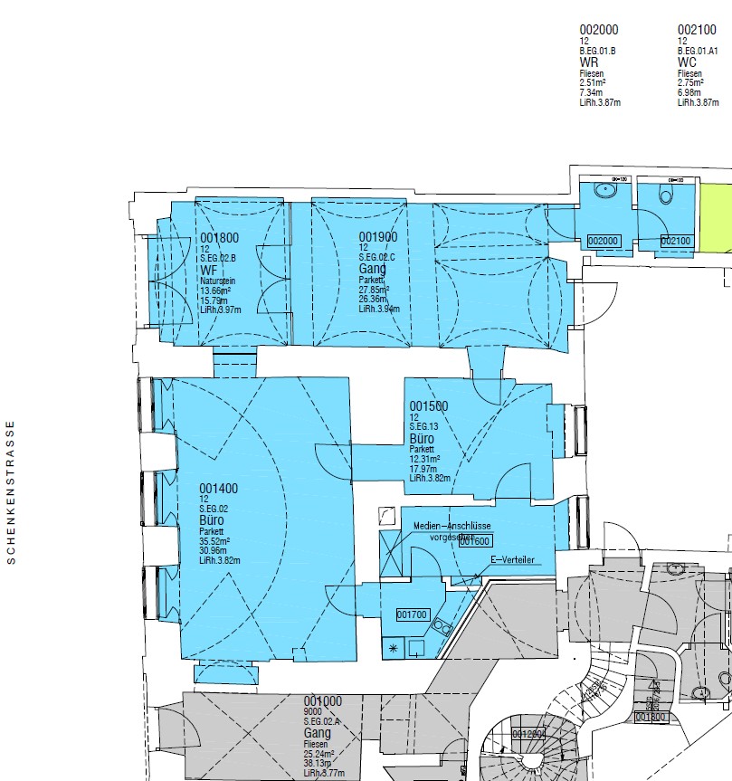
3.OG 181,11 m² EUR 24,75/m²/Monat

Ausstattung

- getrennte, hochwertige Sanitärbereiche
- wunderschöne Parkettböden
- Downlights in Gangbereich
- EDV-Leerverrohrungeichen
- Heizung mittels Fernwärme
- Blick auf die Minoritenkirche
- Raumhöhe 4,20m
- Lift direkt im Büro
- barrierefreies WC im EG
- Möglichkeit einer Dusche im 3. OG

Lage und Verkehrsanbindung

Das Gebäude liegt in einer ruhigen Gasse zwischen Freyung und Burgtheater: eine der besten Lagen Wiens. Das Umfeld ist geprägt von zahlreichen Restaurants, Cafes und Geschäften des täglichen Bedarfs.

U-Bahn: U3 Herrengasse
Bus: 1A, 2A

Konditionen

Nettomiete: EUR 15,00 - 24,75 /m²/Monat
Netto-BK: EUR 2,76/m²/Monat
HK-Akonto: EUR 1,00/m²/Monat

Alle Preisangaben verstehen sich pro Monat zgl. 20% Umsatzsteuer.

Grundriss

Plan 0

Fakten

Objektnummer:
2019-00131
Objekttyp:
Büro
Teilbare Fläche ab:
107,33 m²
Nutzfläche:
288,44 m²
Gesamtfläche:
3.000 m²
Baujahr:
1850
Verfügbar ab:
sofort

Preisdetails

Miete/m² netto ab:
15,00 €
Miete/m² netto bis:
24,75 €
Kaution:
3-6 BMM je nach Bonität
Provision:
3 BMM plus Ust

Energieeffizienz

HWB:
45.00 kWh/(m²*a)

Ansprechpartner

Anfrage
Max. 500 Zeichen
Ich habe die Datenschutzvereinbarung gelesen und verstanden, und ich stimme der Verarbeitung meiner persönlichen Daten wie darin beschrieben zu. *