1040 Wien, Wiedner Hauptstraße 15
1040 Wien, Wiedner Hauptstraße 15 Foto 1
1040 Wien, Wiedner Hauptstraße 15 Foto 2
1040 Wien, Wiedner Hauptstraße 15 Foto 3
1040 Wien, Wiedner Hauptstraße 15 Foto 4

Sanierte Altbaubüros an der Wiedner Hauptstraße

Wiedner Hauptstrasse 15

Beschreibung

Dieses beeindruckende Bürohaus bietet Ihnen die perfekte Gelegenheit, sich in einer der begehrtesten Lagen der Stadt zu etablieren.
Das Bürohaus besticht durch seine architektonische Eleganz und Funktionalität und bietet Ihnen großzügige, helle Büroräumlichkeiten, die sich optimal an Ihre individuellen Anforderungen anpassen lassen.
Hier erwartet Sie ein professionelles Arbeitsumfeld mit allen Annehmlichkeiten, die Sie für den reibungslosen Betrieb Ihres Unternehmens benötigen.

Ausstattung

- Lift vorhanden
- barrierefrei
- Heizung (Fernwärme)
- teilweise Kühlung

Lage und Verkehrsanbindung

Diverse Geschäfte und Einkaufsmöglichkeiten befinden sich in unmittelbarer Umgebung.

öffentlichen Verkehrsanbindung:

Straßenbahnlinie: 1, 62
Schnellbahnlinie: Badner Bahn direkt vor der Haustüre
U-Bahn: U1 (Station Taubstummengasse)

Konditionen

Miete Büro: EUR 18,00-18,50/m²
BK Büro: EUR 3,90-4,11/m²

Alle Preisangaben verstehen sich pro Monat zzgl. 20% Umsatzsteuer.

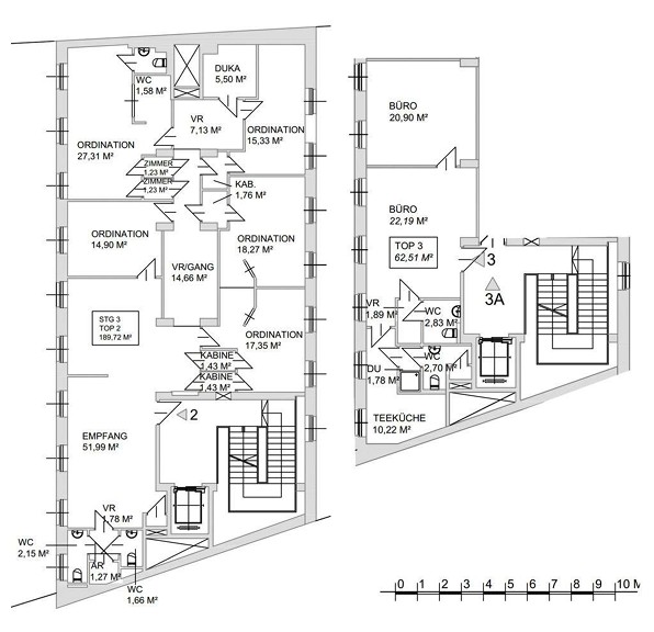
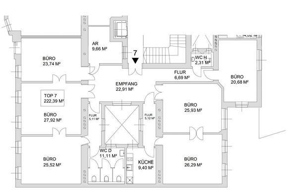
Grundriss

Plan 0

Fakten

Objektnummer:
2025-05384
Objekttyp:
Büro
Teilbare Fläche ab:
63 m²
Nutzfläche:
475 m²
Baujahr:
1900
Verfügbar ab:
sofort

Preisdetails

Miete/m² netto ab:
18,00 €
Miete/m² netto bis:
18,50 €
Betriebskosten pro m²:
4,11 €
Provision:
3% zuzüglich Ust.

Energieeffizienz

HWB:
133.30 kWh/(m²*a)
fGEE:
1.30

Ansprechpartner

Alexander Fenzl

Anfrage
Max. 500 Zeichen