2019 08 14 Silo office park Vogelperspektive
SILO Next
1230 Wien, Lemböckgasse 59 SILO innen 3
1230 Wien, Lemböckgasse 59 SILO innen
1230 Wien, Lemböckgasse 59 SILO innen 2
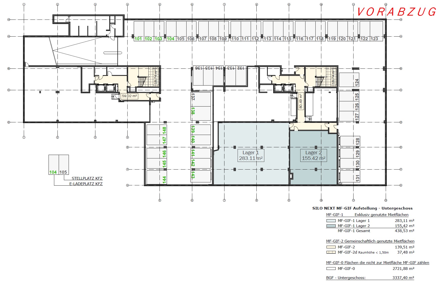
SILO Next UG

SILO Next

Lemböckgasse 59

Beschreibung

In der Lemböckgasse 57–59 entsteht mit Silo Plus ein nachhaltiges Bürogebäude, welches dank flexibler und effizienter Flächenstruktur sowie energie-optimierter Gebäudetechnik speziell auf die Bedürfnisse moderner Unternehmen ausgerichtet ist. Alle Bürogeschoße sind bis ins kleinste Detail nachhaltig konzipiert. Geothermie im Keller und Photovoltaik auf dem Dach schonen die Umwelt und ermöglichen die Realisierung niedriger Betriebskosten.

Ende 2025 wird nun die Erfolgsgeschichte vom Büroprojekt SILO mit dem SILO Next fortgesetzt. Hier werden rund 9.000 m² Bürofläche mit 1.900 m² Regelgeschossfläche und 100 Stellplätzen realisiert.

verfügbare Flächen:
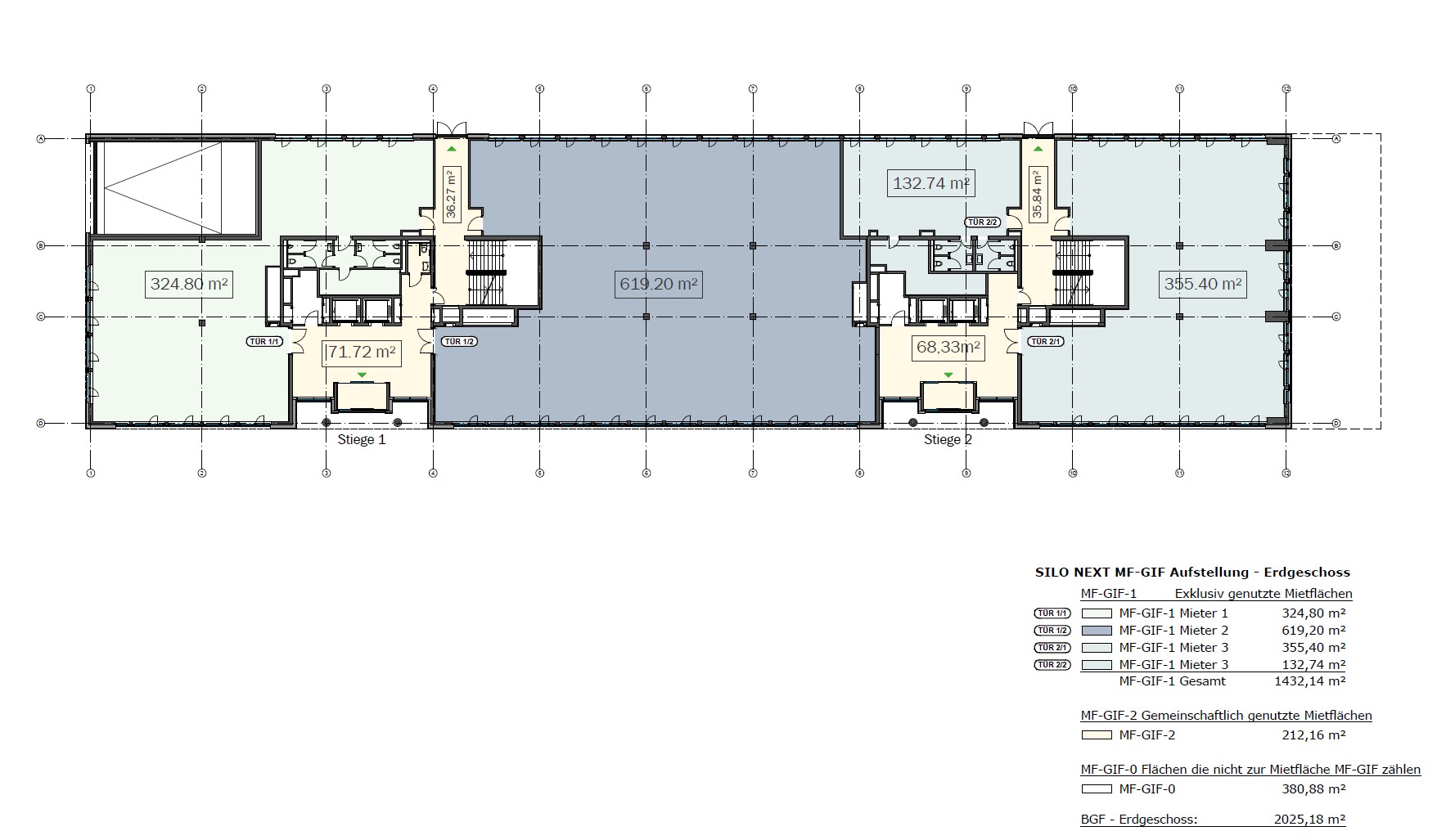
EG - ca. 488 m²
1.OG - ca. 474 m²
2.OG - ca. 624 m²
3.OG - ca. 994 m²
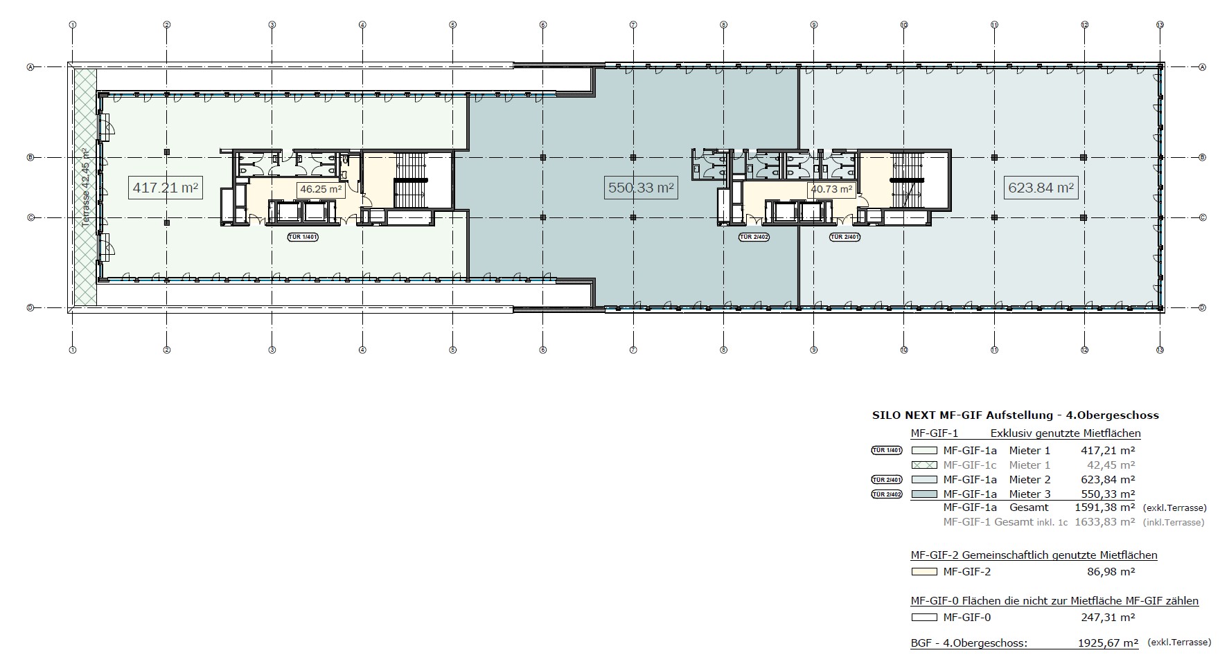
4.OG - ca. 1175 m²
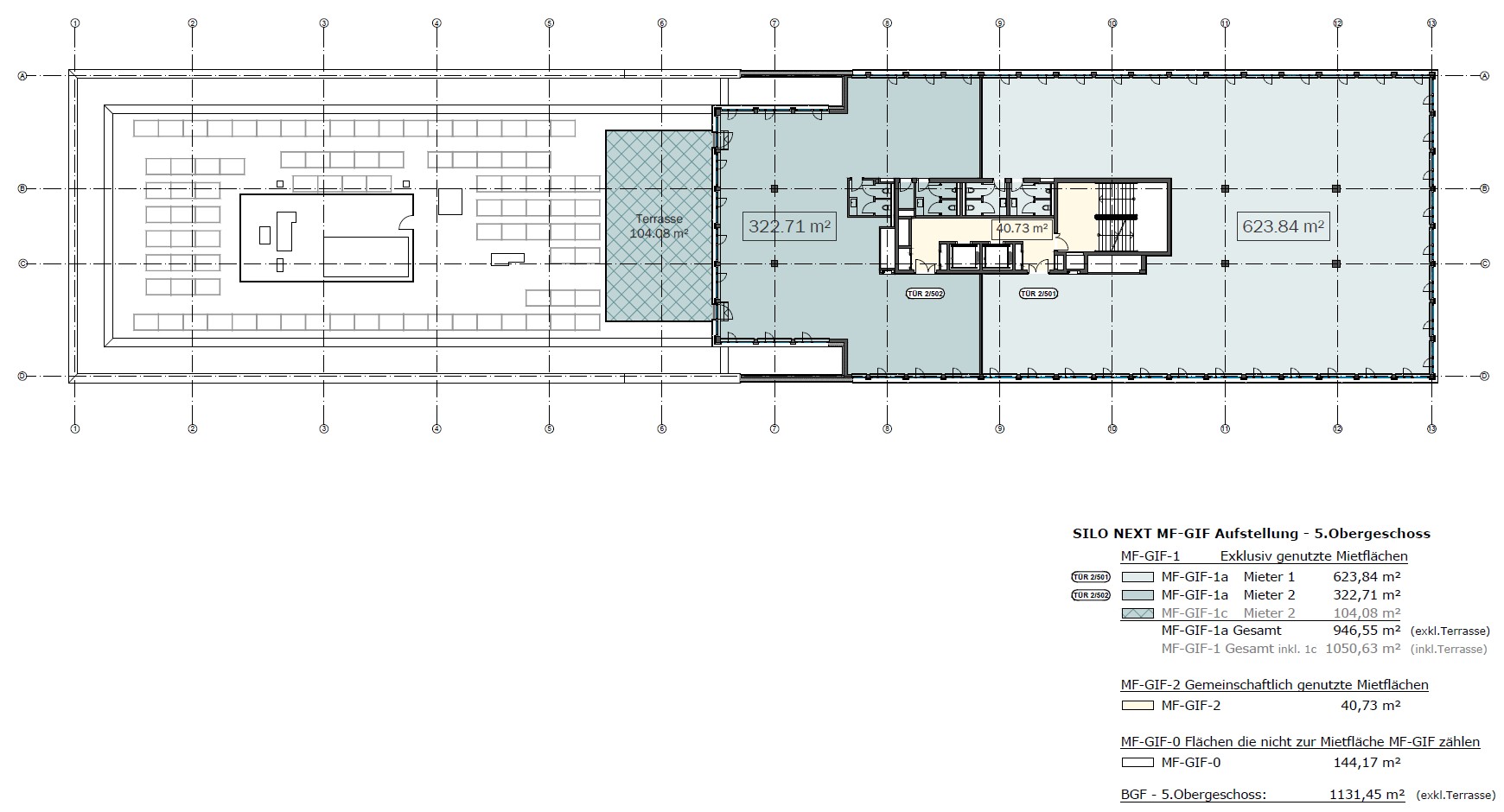
5.OG - ca. 947 m²
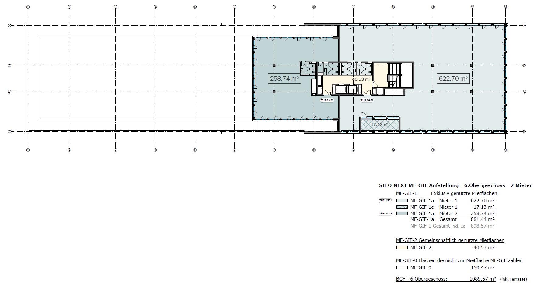
6.OG - ca. 883 m²
gesamt: ca. 5.583 m²

Ausstattung

- Zukunftsweisende Gebäudetechnik
- Kühlung durch Bauteilaktivierung
- attraktive Lobby
- Grundrissgestaltung nach Mieterwunsch
- in-house Garage
- Nutzung erneuerbarer Ressourcen (Geothermie, Photovoltaik)
- Bestes Raumklima durch ökologische Baustoffe
- Thermische Behaglichkeit durch kontrollierte Lüftung
- Großzügige Raumhöhen
- Modernste Kommunikationstechnologien
- HWB Ref,SK 23,04 kWh/m²a

Lage und Verkehrsanbindung

Der Standort besticht durch seine perfekte Lage mit guter Anbindung an Hauptbahnhof und Stadtzentrum – und mit der geplanten wie bestehenden Infrastruktur. Die Stadtautobahnen und die SCS, Österreichs größtes Shopping- und Entertainmentcenter, sind in wenigen Minuten erreichbar.

öffentliche Vekehrsanbindung:
U-Bahn: U6 Perfektastraße (2 min Fußweg)
Bus: 64A

Konditionen

Miete Büro: EUR 15,50-17,50/m²
BK Büro: EUR 3,50/m² inkl. Heizung und Kühlung
Miete Stellplatz Garage: EUR 115,00/Stk.
BK Stellplatz Garage: EUR 15,00/Stk.

Die Flächen verstehen sich zzgl. Allgemeinflächenaufschlag.

Alle Preisangaben verstehen sich pro Monat zzgl. 20% Umsatzsteuer.

Grundriss

Plan 0

Fakten

Objektnummer:
2024-02101
Objekttyp:
Büro
Teilbare Fläche ab:
488 m²
Nutzfläche:
5.584 m²
Gesamtfläche:
11.000 m²
Baujahr:
2025
Verfügbar ab:
Ende 2025

Preisdetails

Miete/m² netto ab:
15,50 €
Miete/m² netto bis:
17,50 €
Garage Kosten brutto:
115,00 €
Betriebskosten pro m²:
3,50 €
Provision:
3 BMM zuzüglich Ust.

Energieeffizienz

HWB:
15.00 kWh/(m²*a)

Ansprechpartner

Anfrage
Max. 500 Zeichen
Ich habe die Datenschutzvereinbarung gelesen und verstanden, und ich stimme der Verarbeitung meiner persönlichen Daten wie darin beschrieben zu. *