© Flenreisz Aussen quer
Tragwerk Aussen
© Flenreisz
Viso Innenraum
© Flenreisz
© Flenreisz
Aussen

TragWerk am Kempelenpark

Kempelengasse 1

Beschreibung

Als Bürogebäude mit 100% gewerblicher Nutzung bietet das „TragWerk“ ideale Voraussetzungen für Unternehmen jeder Größe und Branche. Egal ob Sie Einzelbüros oder Open-Space-Lösungen bevorzugen, die flexiblen Grundrisse sowie die leichte technische Adaptierbarkeit sorgen dafür, dass Sie Ihren Mietbereich individuell gestalten können.
Das Projekt setzt neue Maßstäbe: Zirkuläres Bauen wird groß geschrieben – von der Auswahl der Materialien bis hin zur Wiederverwendbarkeit der Bauelemente. Auch Nachhaltigkeit wird groß geschrieben und spiegelt sich in allen Aspekten der Entwicklung wider.
Von den Balkonen und Terrassen aus fällt der Blick auf das Grün des Kempelenparks, der dazu verleitet das nächste Meeting ins Freie zu verlegen.
Im Innenraum sorgt ein nachhaltiges Energiesystem für eine angenehme und gleichzeitig kostenschonende Temperierung, sowohl im Winter als auch im Sommer.

Nutzfläche nach ÖNORM B1800:2013
EG: 1 206 m²
OG 1 –OG 5: jeweils 1 280 m²
OG 6: 1 110 m²
OG 7 –OG 9: jeweils 708 m²
Gesamt: ~10 828 m²

PKW-Stellplätze: 70
Fahrradstellplätze: 123

Ausstattung

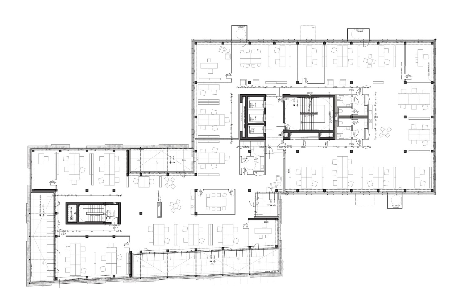
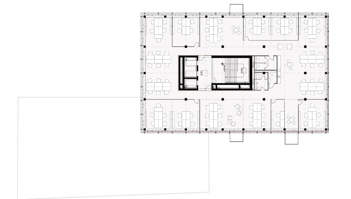
• Vierer-Teilung als Standardausbau in den Regelgeschoßen E01–E05
• Großzügige, lichte Raumhöhen ab 2,82m
• Sanitäranlagen: je Mietbereich eine Sanitärgruppe mit zwei nach Geschlechtern getrennten Bereichen sowie einem barrierefreiem WC
• Freiflächen: den Mietflächen zugeordnete Balkone
• Oberflächengestaltung: Industrial Chic mit Betonoberflächen und sichtbaren Lüftungsleitungen
• Boden: Doppelboden mit Teppichbelag; 1 Bodendose je 20m² Nutzfläche
• Bürotrennwände: Trockenbau; davon 20% ausGlas
• Bürobeleuchtung: energieeffiziente und flexible Stehleuchten (1Stück je 20m² Nutzfläche)
• Gangbeleuchtung: abgehängte Lichtleisten mit Bewegungsmelder

Lage und Verkehrsanbindung

In den kommenden Jahren entsteht mit dem Quartier AM KEMPELENPARK ein moderner, klimafitter, sozial durchmischter und nachhaltiger Stadtteil. Als zentrales Herzstück des Quartiers wird ein rund ein Hektar großer Park der Öffentlichkeit gewidmet und das übergeordnete Radwegenetz geschlossen.
Durch die sehr gute Anbindung an den öffentlichen Verkehr ist auch die Wiener Innenstadt binnen weniger Minuten zu erreichen.

Straßenbahnlinien D, 6 & 11: 5 min
U1 Reumannplatz: 9 min
Hauptbahnhof: 14 min
Stephansplatz / Innenstadt: 25 min

Konditionen

Miete Büro: EUR 15,50 - EUR 17,50/m²
BK Büro: voraussichtlich EUR 4,50/m² inkl. Heizung / Kühlung
Miete Terrasse: EUR 4,00 - EUR 6,00/m²

Die Flächenaufstellung beinhaltet die reine Bürofläche exkl. anteiliger Allgemeinfläche..

Alle Preisangaben verstehen sich pro Monat zzgl. 20% Umsatzsteuer.

Grundriss

Plan 0

Fakten

Objektnummer:
2026-05403
Objekttyp:
Büro
Teilbare Fläche ab:
1.280 m²
Nutzfläche:
10.828 m²
Gesamtfläche:
10.828 m²
Baujahr:
2027
Verfügbar ab:
Q1 2028

Preisdetails

Miete/m² netto ab:
15,50 €
Miete/m² netto bis:
17,50 €
Garage Kosten brutto:
150,00 €
Betriebskosten pro m²:
4,50 €
Provision:
3 BMM zuzüglich Ust.

Ansprechpartner

Anfrage
Max. 500 Zeichen
Ich habe die Datenschutzvereinbarung gelesen und verstanden, und ich stimme der Verarbeitung meiner persönlichen Daten wie darin beschrieben zu. *