20251024_081939072_iOS
20251024_082129644_iOS
20251024_081907218_iOS
20251024_081554627_iOS
20251024_085021604_iOS
c2020_zoomvp_sueba_rosthorngasse_5_c01
c2020_zoomvp_sueba_rosthorngasse_5_c02
Gebäude
c2020_zoomvp_sueba_rosthorngasse_5_c05

WUNDERSCHÖNE 2-ZIMMER WOHNUNG - BALKON - RUHELAGE - INKL. KÜHLUNG UND HOCHWERTIGER AUSSTATTUNG

Rosthorngasse

Beschreibung

ESSLING LIVING - Traumhafte Wohnungen

Das Projekt Essling Living befindet sich im aufstrebenden 22. Wiener Gemeindebezirk inmitten eines ruhigen Wohngebietes und verbindet urbanes Wohnen im Einklang mit der Natur. Insgesamt wurden 82 innovative Mietwohnungen und 46 Tiefgaragenstellplätze errichtet.
Das Projekt zeichnet sich neben der Lage durch seine vielfältigen Wohnungstypen mit 1,5-4 Zimmer aus. Wohnungsgröße zwischen 35 und 100 m².

Nahezu alle Wohnungen verfügen über einen Balkon, eine Loggia oder eine Terrasse und zeichnen sich durch eine gehobene Ausstattung aus. Sämtliche Wohnungen verfügen zudem über eine Fußbodenkühlung und werden mittels Erdwärme beheizt.

In der hauseigenen Tiefgarage kann ein Stellplatz um EUR 89,00 / Monat angemietet werden, Stellplätze für Elektrofahrzeuge kosten EUR 119,00 / Monat.

Ausstattung

- Alle Wohnungen gekühlt
- Alle Wohnungen mit Sonnenschutz
- Hochwertige Einbauküche
- Eichenparkettböden
- Moderne Verfliesung in den Badezimmern
- Fast alle Wohnungen mit Freifläche (Balkon, Garten, Loggia oder Terrasse)

Lage und Verkehrsanbindung

Der Standort des Projektes punktet mit seiner verkehrsgünstigen Lage unweit zu der U-Bahnstation U2 Seestadt, sowie mit seiner ausgezeichneten Infrastruktur.

Einige Supermärkte (Spar, Lidl, Billa), eine Apotheke und eine Tankstelle sind fußläufig erreichbar. Ebenfalls bietet sich in der Umgebung ein großes Angebot an Sportmöglichkeiten. Der nahegelegene Himmelteich und die Kirschenallee laden zudem zu einem idyllischen Spaziergang ein.

Mit der Buslinie 26A gelangt man direkt zum Donauzentrum, wo sich ein breites Spektrum an Einkaufsmöglichkeiten bietet.

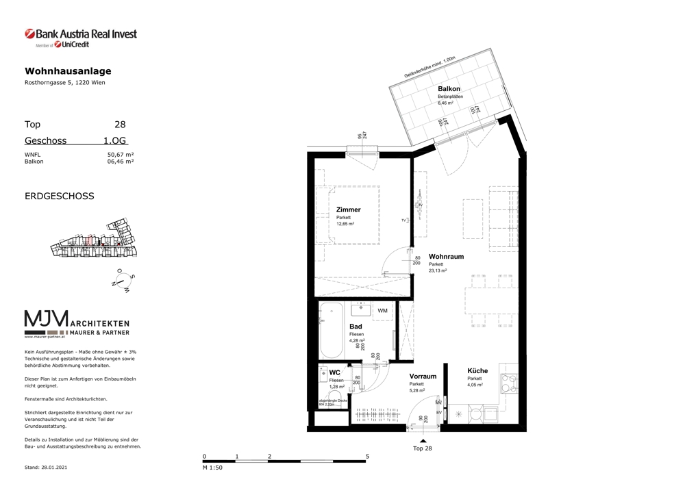
Grundriss

Plan 0

Fakten

Objektnummer:
2021-1220-381
Objekttyp:
Wohnung
Balkon:
1
Balkonfläche:
6,55 m²
Wohnfläche:
50,25 m²
Zimmer:
2
Schlafzimmer:
1
Badezimmer:
1
Toilette:
1
Stockwerk:
1
Baujahr:
2021
Verfügbar ab:
nach Vereinbarung

Preisdetails

Nettomiete:
775,25 €
Betriebskosten netto:
88,67 €
Gesamtmiete:
950,32 €
Bruttomiete:
852,78 €
Betriebskosten brutto:
97,54 €
Kaution:
2.310,00 €

Energieeffizienz

HWB:
26.75 kWh/(m²*a)
Klasse HWB:
B
fGEE:
0.74
Klasse fGEE:
A
Ausstellung:
ab dem 1.5.2014
Gültig bis:
09.04.2029

Ansprechpartner

Anfrage
Max. 500 Zeichen
Ich habe die Datenschutzvereinbarung gelesen und verstanden, und ich stimme der Verarbeitung meiner persönlichen Daten wie darin beschrieben zu. *