Properties
Projects
Property sale
Living
Office
Industry
Team
De
|
En
Open menu
Close menu
Properties
Projects
Property sale
Living
Office
Industry
Team
De
|
En
Attraktives Büro beim Stadtpark
Bayerngasse 1-3
Gallery
Plans
Map
Klicken Sie, um die Karte in Google Maps zu öffnen
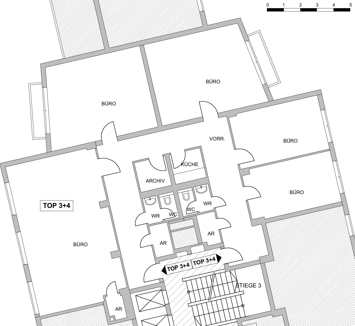
Plan layout
Facts
Property number:
2022-01666
Type of property:
Office
Net internal area
202.69 m²
Year of construction
1975
Available from
ab sofort
Price details
Net rent / m²
€14.00
Utility costs / m²
€3.24
Brokerage text
3 BMM zzgl. USt.
Energy efficiency
Heating energy demand
41.30 kWh/(m²*a)
Contact person
Andreas Staudinger
andreas.staudinger@optin.at
00436764103527
Request details
Request
Please send me more information about property 2022-01666.
First name
Last name *
Email *
Phone *
Message *
Max. 500 characters
Please send me more information for this property (availability, visiting time etc.).
I have read and understood the GDPR and I consent to the processing of the personal data as described on the website. *
Submit