Properties
Projects
Property sale
Living
Office
Industry
Team
De
|
En
Open menu
Close menu
Properties
Projects
Property sale
Living
Office
Industry
Team
De
|
En
ODO25 | 2 Zimmer | zwei Balkone | großzügig geschnitten | Mietbeginn ab 01.07.2026
Odoakergasse 25
Gallery
Plans
Map
Klicken Sie, um die Karte in Google Maps zu öffnen
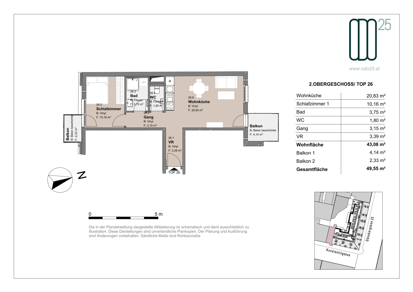
Plan layout
Facts
Property number:
2025-25-26
Type of property:
Apartment
Quantity balconies
1
Balcony area
6.47 m²
Living area
43.08 m²
Quantity rooms
2
Quantity bedrooms
1
Quantity bathrooms
1
Quantity toilets
1
Floor location
2
Year of construction
2026
Structural condition
Erstbezug
Available from
01.07.2026
Price details
Net basic rent
€800.44
Net operating expenses
€90.47
Gross rent
€980.00
Gross rent
€880.48
Gross parking garage rent
€110.00
Gross utility costs
€99.52
Deposit
€2,940.00
Brokerage text
Provisionsfrei für den Mieter
Energy efficiency
Heating energy demand
26.20 kWh/(m²*a)
Heating energy demand class
B
Total energy efficiency factor
0.66
Total energy efficiency factor class
A+
EPC year
ab dem 1.5.2014
EPC expiry date
19.11.2035
Contact person
Team odo25
odo25@optin.at
0043676847772206
Request details
Virtual tours
Request
Please send me more information about property 2025-25-26.
First name
Last name *
Email *
Phone *
Message *
Max. 500 characters
Please send me more information for this property (availability, visiting time etc.).
I have read and understood the GDPR and I consent to the processing of the personal data as described on the website. *
Submit