Properties
Projects
Property sale
Living
Office
Industry
Team
De
|
En
Open menu
Close menu
Properties
Projects
Property sale
Living
Office
Industry
Team
De
|
En
ARES TOWER
Donau-City-Straße 11
Gallery
Plans
Map
Klicken Sie, um die Karte in Google Maps zu öffnen
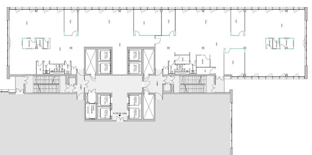
Plan layout
Facts
Property number:
2019-00186
Type of property:
Office
Area dividable from
244 m²
Net internal area
5,304 m²
Total area
36,928 m²
Year of construction
2001
Available from
tlw. sofort
Price details
Net rent / m² from
€13.90
Net rent / m² to
€15.90
Utility costs / m²
€5.45
Brokerage text
3 BMM zuzüglich Ust.
Energy efficiency
Heating energy demand
61.00 kWh/(m²*a)
Contact person
Alexander Fenzl
alexander.fenzl@optin.at
00436763521877
Request details
Request
Please send me more information about property 2019-00186.
First name
Last name *
Email *
Phone *
Message *
Max. 500 characters
Please send me more information for this property (availability, visiting time etc.).
Please provide me with more detailed information about the property.
I am interested in arranging a viewing appointment.
I would like to receive a non-binding financing consultation.
I have read and understood the GDPR and I consent to the processing of the personal data as described on the website. *
Submit